180㎡三居唐园小区
发布时间:
2018年11月03日
小区:唐园小区 面积:180㎡ 户型:三居 风格:
设计说明
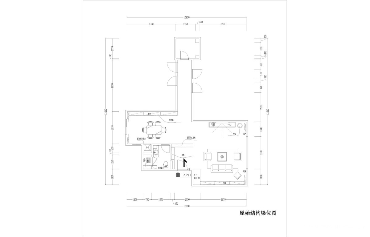
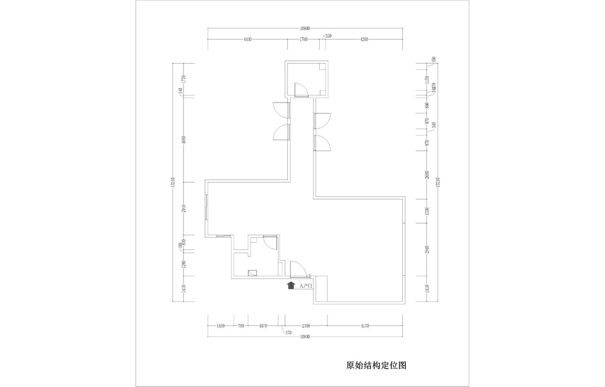
客户为旧房改造局部改造,只简单的改造客餐厅和厨房卫生间,客厅进深比较长,所以感觉比较空旷,后设计书柜和娱乐区划分区域。
户型图

客厅





玄关

餐厅


卫生间

客户为旧房改造局部改造,只简单的改造客餐厅和厨房卫生间,客厅进深比较长,所以感觉比较空旷,后设计书柜和娱乐区划分区域。









