160㎡三居现代简约风格世纪颐园
发布时间:
2018年11月03日
小区:世纪颐园 面积:160㎡ 户型:三居 风格:现代简约风格
设计说明
客户原为业之峰装修客户,为年轻夫妇,有一个女儿,漂亮活泼爱画画,父母在本单元楼下13楼居住,所以考虑主卧,孩子房和备用房间,平时老人在楼下居住,偶尔会共住。
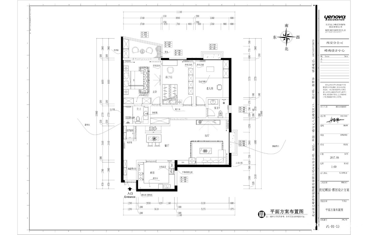
户型图

卧室

客厅




玄关

餐厅

客户原为业之峰装修客户,为年轻夫妇,有一个女儿,漂亮活泼爱画画,父母在本单元楼下13楼居住,所以考虑主卧,孩子房和备用房间,平时老人在楼下居住,偶尔会共住。







