110㎡三居现代简约风格联发悦春山
发布时间:
2025年10月26日
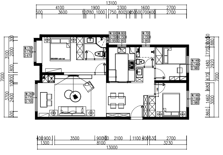
小区:联发悦春山 面积:110㎡ 户型:三居 风格:现代简约风格
设计说明
本方案是现代简约风格, 客户属于90后.目前常住两口人,未来规划三至四口人;也是自己首套住宅,对于空间要求简单,有足够的收纳.动线合理;
在基础需求上对空间布局设计以尽可能简单、合理.在主色搭配上以浅色为主,辅助色跳深色,点缀色适当加一些饱和度高的色彩,让整体空间显得有活力;
在收纳上以人为本,合理利用好每一个空间,在忙碌的生活间隙方便使用,根据客户的爱好,习惯以及家庭人员结构,按一定比例去划分每个人的收纳空间;
户型图

卧室


餐厅

厨房

客厅






京公安网备11010502040911