117㎡三居现代简约风格雁南朗境
发布时间:
2025年11月30日
小区:雁南朗境 面积:117㎡ 户型:三居 风格:现代简约风格
设计说明
本空间以“精致简约·功能适配”为核心,通过“低饱和基底+质感材质+简约线条”的设计逻辑,打造适配都市改善型家庭的高品质居住场景。
风格以“米白+深棕+墨黑”为核心配色:米白墙面与浅咖护墙板,构建静谧柔和的空间基底;深棕木色(定制柜、台面)与墨黑(沙发、灯具)作为重色点缀,平衡轻浅色调的“飘感”;金属线条、大理石纹理的局部融入,为空间注入简约质感,丰富视觉层次。
空间布局与功能:
客厅:无主灯+悬浮吊顶设计,环形灯带与线性灯分层布光,强化通透感;电视墙以“木格栅+岩板+悬浮柜”组合,兼顾收纳与展示;墨黑皮质沙发搭配大理石茶几,通过材质对比提升精致度。
餐厅:定制餐边柜结合封闭收纳与玻璃展示格,嵌入电器实现功能隐形;大理石台面餐桌搭配几何造型吊灯,适配轻社交场景;厨房采用玻璃隔断,既保空间通透又隔离油烟。
门厅:通顶柜+开放格组合,底部预留换鞋区,开放格嵌入氛围灯,实现“入户即精致”的视觉体验。
卧室:主卧以浅咖护墙板+艺术挂画营造静谧氛围,“一门到顶”衣柜弱化柜体存在感;次卧采用“床+书桌+收纳”一体化定制,适配“休憩+办公”双需求,局部氛围灯提升精致感。
厨房:U型布局适配操作需求,浅灰柜面+深棕台面呼应全屋风格,大理石纹理墙砖搭配黑色烟机,实用中见简约质感;
整体设计以“精致不浮夸,实用不将就”为原则,平衡质感与功能,适配日常起居、社交待客等多元需求,是兼具品质与烟火气的现代人居范本。
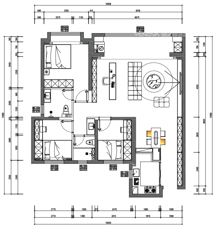
户型图

卫生间

厨房

卧室


餐厅

客厅





京公安网备11010502040911