北京
【切换】
整屋案例
家居美图
实景案例
装修现场
装修攻略
无数据
搜索
010-84934479
扫码快速拨号 >
扫码快速拨号
首页
效果图
设计师
装修现场
装修攻略
品质保障
了解业之峰
当前位置:
首页
装修图库
案例相册
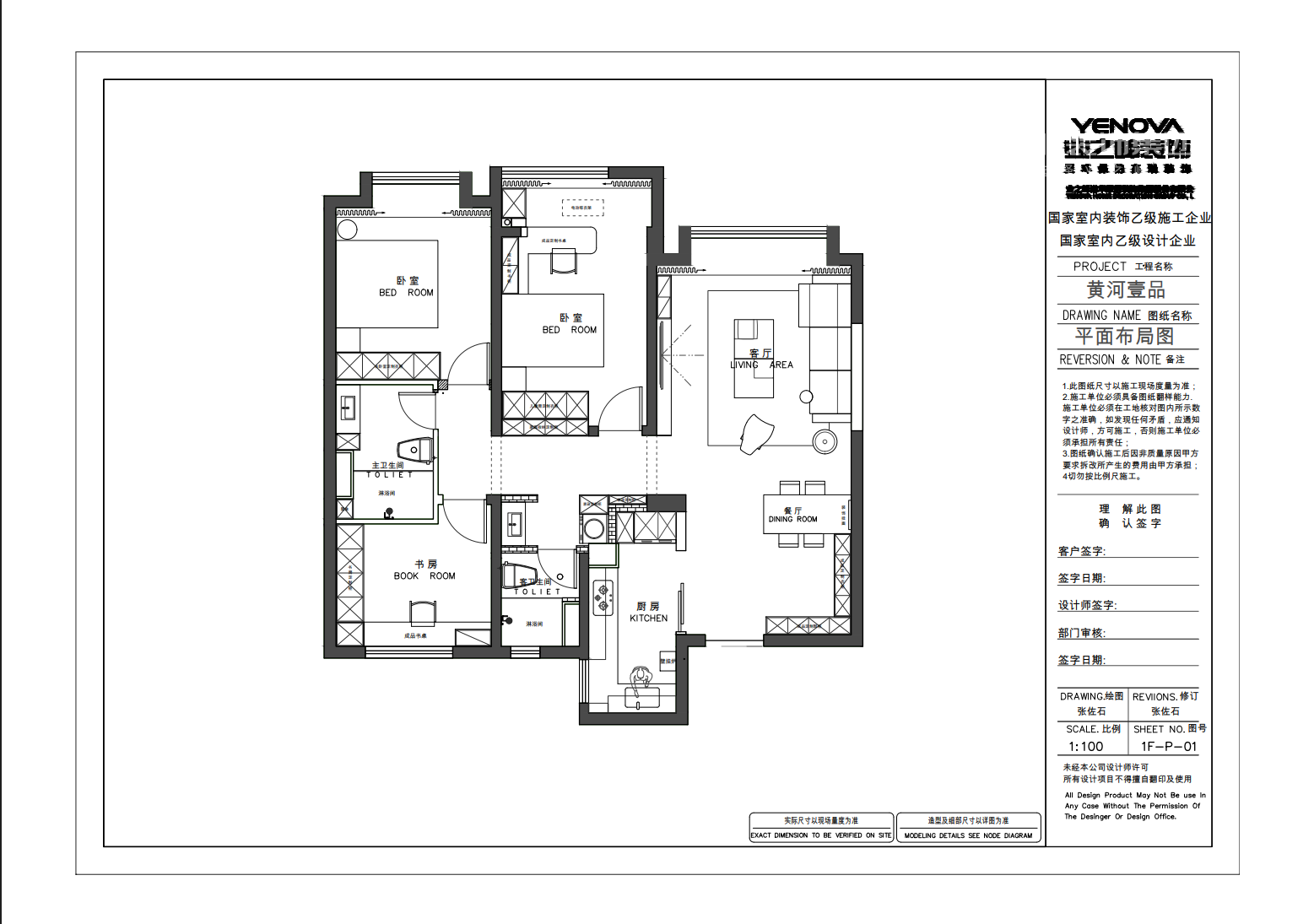
125㎡三居现代简约风格黄河壹品
发布时间: 2025年12月04日
小区:黄河壹品
面积:125㎡
户型:三居
风格:现代简约风格
设计说明
黄河壹品 125 平现代简约设计,以木白为基揉自然质感,通联动线 + 隐形收纳,平衡通透与实用,营造温馨轻简起居空间。
户型图
次卧室
书房
餐厅
主卧室
休闲区
厨房
大厅
设计说明
户型图
次卧室
书房
餐厅
主卧室
休闲区
厨房
大厅
本案设计师
张佐石
优秀设计师
免费咨询
我家装成这样多少钱?
㎡
获取报价
相关案例推荐
98㎡三居现代简约风格南山纵横滨江时代
查看详情
91㎡三居现代简约风格星河绘
查看详情
108㎡三居现代简约风格金色华府
查看详情
140㎡三居现代简约风格天房樾梅江
查看详情
103㎡三居现代简约风格中国铁建·滨海梧桐
查看详情
134㎡三居现代简约风格阳光怡园
查看详情
96㎡三居现代简约风格天淼园
查看详情
130㎡三居现代简约风格红星天铂
查看详情
130㎡三居现代简约风格九号公馆
查看详情
120㎡三居现代简约风格红星天铂
查看详情
145㎡三居现代简约风格大运河府
查看详情
101㎡三居现代简约风格绿城桂语听蘭
查看详情
117㎡三居现代简约风格雁南朗境
查看详情
90㎡三居现代简约风格万科东望
查看详情
130㎡三居现代简约风格万科东望
查看详情
120㎡三居现代简约风格白桦林溪
查看详情
115㎡三居现代简约风格金地中央公园
查看详情
112㎡三居现代简约风格中建财智广场
查看详情
140㎡三居现代简约风格元和聚宝苑
查看详情
展开
报价计算器
免费量房
免费设计
回到顶部