112㎡三居现代简约风格中建财智广场
发布时间:
2025年11月28日
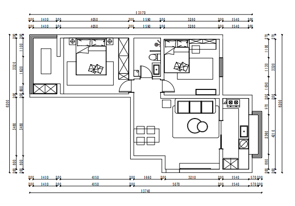
小区:中建财智广场 面积:112㎡ 户型:三居 风格:现代简约风格
设计说明
本案的设计风格为现代简约风格。业主是自住,工作主要是西安本地,夫妻两人开了一家公司,房子买在商业底带考虑离家近,房子为毛坯房,以黑白灰为核心色调,通过简洁的线条、纯粹的材质和极少的装饰,营造出高级、冷静的空间氛围,体现“少即是多”的设计哲学。
户型图

卧室


卫生间

餐厅

厨房

客厅






京公安网备11010502040911