143㎡三居现代简约风格保利天汇
发布时间:
2025年10月30日
小区:保利天汇 面积:143㎡ 户型:三居 风格:现代简约风格
设计说明
本方案以「现代简约」为基调,深度融合「都市精英主义」与「艺术化生活」理念。我们旨在打破空间的固有边界,为年轻夫妻构筑一个既开放互联又保有独立精神角落的居所。设计中,我们巧妙运用材质、光影与线条的变奏,在理性克制的灰白色调中,穿插宝格丽风格的奢华质感与棕色木饰面的温润,最终谱写出一曲理性与情感交织、经典与前卫共鸣的“格调序曲”。
空间叙事 | Spatial Narrative
1. 公共区域:开放互联的艺术厅廊
· 横厅与落地窗: 最大化利用横厅的尺度优势,与整面落地窗结合,将阳光、风景与流动的空气引入室内。这里不仅是客厅,更是一个集休闲、社交、观景于一体的多功能艺术厅廊。无遮拦的视野赋予了空间无与伦比的通透感与气场。
· 开放式厨房与岛台: 厨房完全开放,与客厅、餐厅无缝衔接。中心岛台的设计是空间的灵魂所在,它既是备餐台、早餐吧,也是夫妻二人日常交流、与朋友小酌的核心区。它强化了空间的互动性,让烹饪与生活融为一体。
· 地面铺陈: 全屋通铺 750×1500mm 柔光砖。大规格瓷砖的延伸感,从视觉上进一步扩大了空间尺度。柔光质地既能反射柔和光线,提升空间质感,又避免了高光砖的刺眼与喧嚣,营造出静谧、高级的脚感与视觉体验。
2. 设计语汇:材质的交响乐章
· 色彩与材质基调: 以白色柜体的纯净与棕色木饰面的沉稳作为主旋律。白色拓展空间感,棕色注入温暖与深度,共同构成经典而现代的背景。
· 奢华点缀: 精心穿插的宝格丽黑岩板是设计中的高光音符。其独特的纹理与深邃的质感,应用于岛台立面、电视背景墙或局部墙面,瞬间点燃空间的奢华气质与艺术气息,与柔光砖和木饰面形成强烈的视觉张力。
· 光影雕塑: 无主灯吊顶确保了空间顶面的极致简约与纯粹。通过磁吸轨道灯、嵌入式射灯、线性灯带等多层次灯光设计,实现对光环境的精准控制。光线成为“画笔”,勾勒空间轮廓,聚焦视觉重点,营造出或明亮通透、或温馨静谧的沉浸式氛围。
3. 功能与美学的细节共鸣
· 入户玄关:钢琴键挂衣装置
入户第一眼便是艺术的开始。创新的钢琴键挂衣装置,将功能与艺术完美结合。黑白错落的挂点,如同跃动的琴键,不仅解决了日常衣帽、包包的收纳问题,更成为一幅极具现代感的立体装饰画,预告了整个空间的设计格调。
· 独立精神领地:电竞房
专为年轻心态打造的电竞房,是男主人或夫妻二人的专属精神乐园。我们摒弃了传统书房的刻板印象,将其设计为一个充满科技感与沉浸感的酷炫空间。结合人体工学、专业的灯光与设备布局,确保在娱乐的同时兼顾健康与舒适。这里不仅是游戏战场,更是释放压力、激发创意的灵感源泉。
总结 | Conclusion
本设计最终呈现的,不仅仅是一个居住的容器,更是一个与居者气质同频共振的“有机体”。它既有开放社交的大气,也有私密角落的温情;既有现代简约的理性,也有宝格丽元素的奢华点缀。我们通过精准的空间把控与细腻的设计笔触,为年轻的夫妻二人打造了一个真正契合其生活方式、精神追求与审美品位的理想之家——一个每天醒来都充满期待,归来都能感受到归属与宁静的现代精英居所。
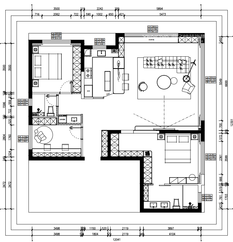
户型图

卧室


休闲区

餐厅

客厅






京公安网备11010502040911