220㎡别墅中古风格珑樾壹号
发布时间:
2025年10月30日
小区:珑樾壹号 面积:220㎡ 户型:别墅 风格:中古风格
设计说明
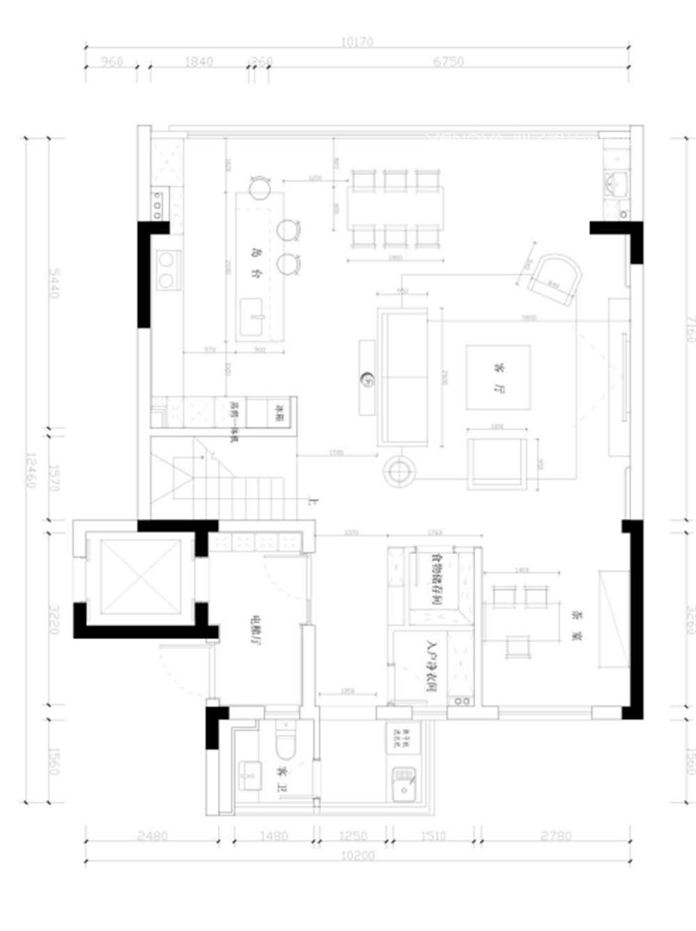
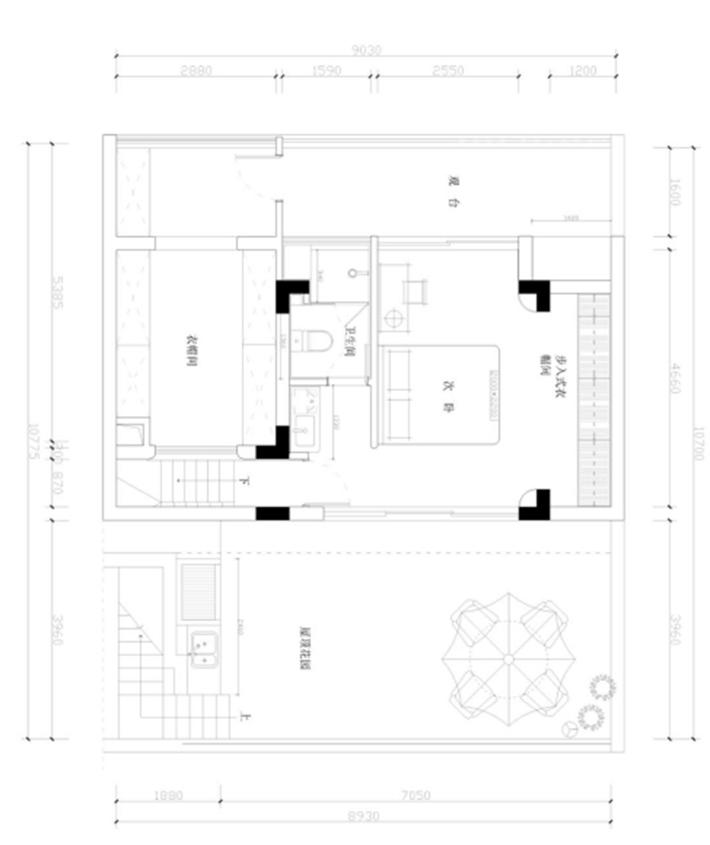
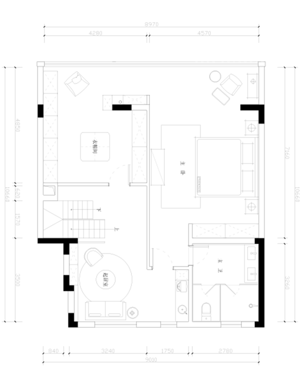
设计说明:客户是军职人员,年龄50岁左右,有一个女儿在国外读大学,每年回回家短暂居住一段时间 客户对生活品质要求比较高 特别是对收纳空间的要求分门别类,原始户型赠送空间比较多,所以在土建上做了比较大的调整,一楼调整为综合性的活动空间,满足会客 用餐和男主人的品茗空间,并单独考虑了入户净衣间和食品储藏间,二楼为夫妻二人的起居空间,除了一个很大的更衣间和主卧诸位外给女主人单独考虑了一个可以读书喝咖啡的一个起居室,并配置了小型的咖啡吧和冰柜,三楼是女儿的独立空间,也单独考虑了独立的洗衣区和更衣室。整体风格根据业主的生活习惯和职业特点做的简洁明快且各个区域储藏功能强大,满足业主日常生活需求和情绪价值。
户型图



厨房

卧室

餐厅

主卧室





京公安网备11010502040911