94㎡三居中古风格神仙树大院
发布时间:
2025年10月30日
小区:神仙树大院 面积:94㎡ 户型:三居 风格:中古风格
设计说明
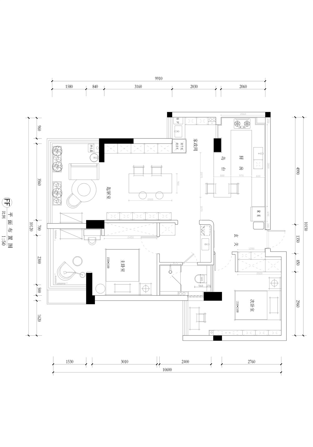
客户是一位单身女性从事医疗行业 孩子读大学 偶尔回家,平时比较喜欢旅行烹饪和读书,性格比较内向,自己在家呆的时间比较多,基本不看电视。经过沟通后本案采用了开放式厨房和去客厅化设计,根据业主自身的日常生活习惯调整了房屋的功能布局,客厅没有按传统布局电视和沙发,考虑了满墙的书柜和大的书桌来满足日常看书及会客的功能,把原厨房拆掉外扩,并采取餐岛一体的设计扩展了厨房的功能,并融入会客区,强化生活的便利性和空间的多样化,对卫生间也做了干湿分区的考虑,来解决原户型比较局促的空间,局部采用玻璃砖增加采光。整个空间在材料的使用上大量才用原木材质,配合土黄色系乳胶漆和小面积绿色,营造一种比较原生和朴素的空间调性。
户型图

玄关

卧室

餐厅





京公安网备11010502040911