110㎡三居中古风格恒大国际城
发布时间:
2025年10月31日
小区:恒大国际城 面积:110㎡ 户型:三居 风格:中古风格
设计说明
中古风格得色调丰富多样但它偏爱温暖、柔和的颜色。比如古铜色、深棕色等,这些色彩不仅能带来视觉上的温暖感,也能让人感受到一种历史的沉淀。和现代冷峻、极简的设计风格不同,中古风的设计更具温情;它通过细节的雕琢和色彩的搭配;让空间充满故事感,仿佛每一处装饰都在低语诉说着曾经的辉煌。中古风不仅仅体现在建筑和空间地布局中,它在家居设计中同样发挥着重要作用。想象一下,一张由深色木材制成的餐桌它的桌面上雕刻着复杂的花纹这些花纹仿佛承载着一个家族的记忆;或者是那张舒适的老式沙发。古老的织物在阳光下散发着温暖的光泽。每一件家具、每一件装饰物。都可以是中古风格的传递者,它们不仅仅是功能性的物件,更是文化的载体。
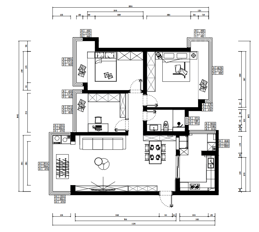
户型图

卧室


卫生间

餐厅

厨房

客厅






京公安网备11010502040911