97㎡三居中古风格绿城秋月苑
发布时间:
2025年10月30日
小区:绿城秋月苑 面积:97㎡ 户型:三居 风格:中古风格
设计说明
本案的装修风格是目前比较流行的中古风装修,古典与时尚的完美邂逅,融合现代与复古的中古风,用现代的口吻,诉说着时间的深度和历史的厚重感。以简介的线条和几何形状为基础,搭配具有年代感的家具和装饰品,营造出既有现代感不失怀旧氛围的空间。整体色调以低饱和度的色彩为主,如米白色、白色,搭配胡桃木色,营造出柔和、温馨的氛围,自已一种电影滤镜的氛围感。
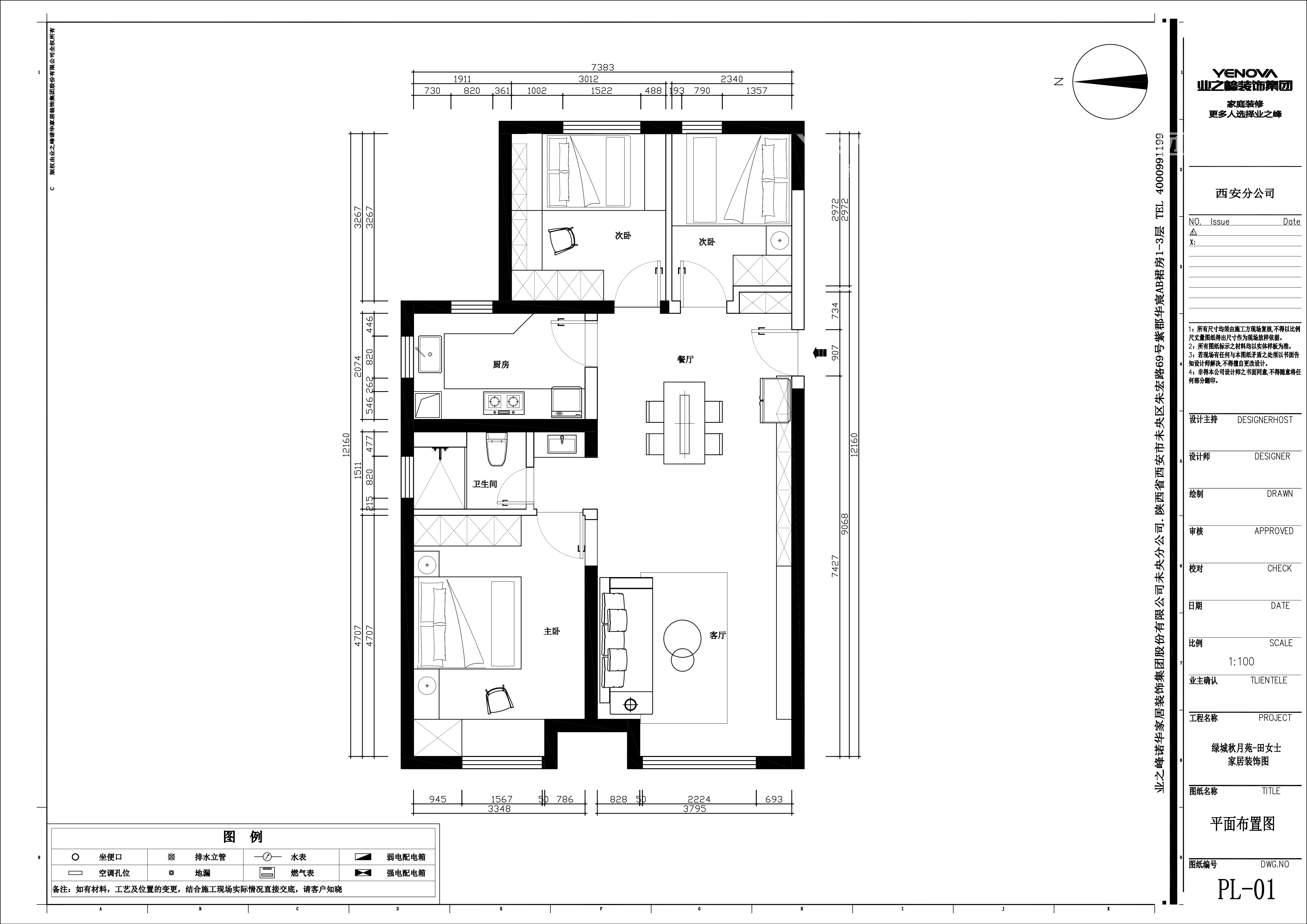
户型图

楼梯

客厅






京公安网备11010502040911