110㎡三居奶油风格双峰锦湖
发布时间:
2025年10月31日
小区:双峰锦湖 面积:110㎡ 户型:三居 风格:奶油风格
设计说明
奶油风整体空间硬装,要简单干净利落,软装要温馨,色调统一,质感细腻,用轻盈的颜色和材质打造出一个舒适、放松的居住空间。
本案中,配色主要以奶咖为主的色系,搭配暖灰色、金属、原木色等,家具选比较厚重一点,搭配绿植;像后期软装上面搭配纹理感比较强的、羊毛地毯、亚麻沙发、棉麻的窗帘等都是不错选择,硬装上面吊顶一般采取圆弧设计和线条搭配为主,避免一些棱角,从而达到温馨而舒适的氛围,让人感到放松和愉悦。
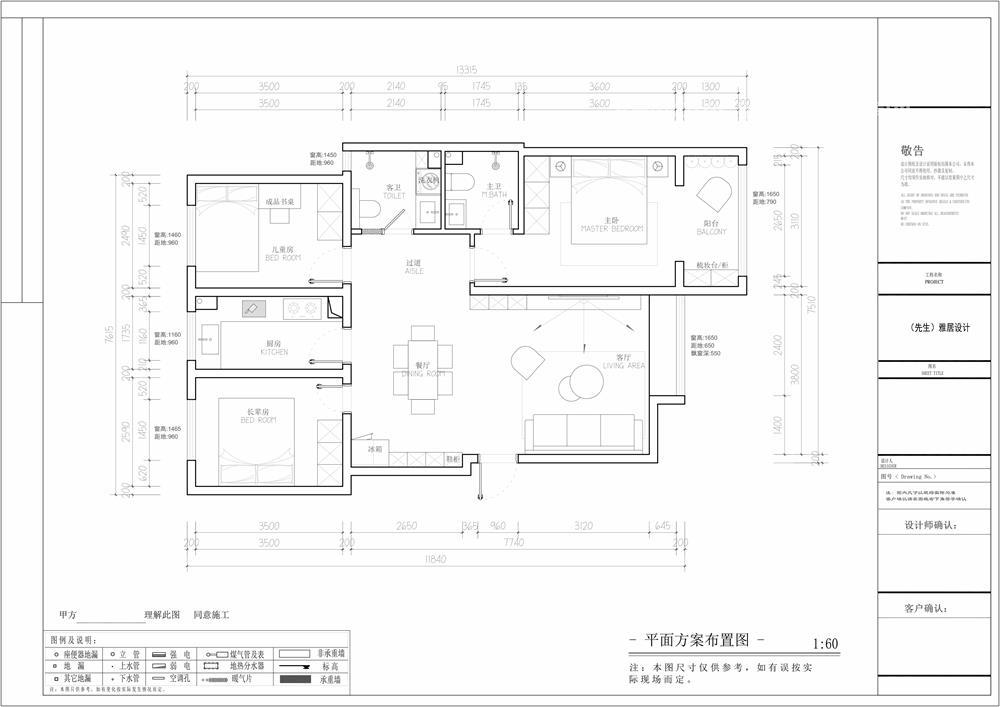
户型图


卧室


阳台

客厅





京公安网备11010502040911