162㎡三居奶油风格蓝光未来城
发布时间:
2025年10月22日
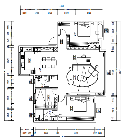
小区:蓝光未来城 面积:162㎡ 户型:三居 风格:奶油风格
设计说明
本方案主要从现代简约风格入手,是一个3室2厅1厨2卫暖色调平层案例设计。该设计为客餐厅一体的开放式设计,通体柜体从门口一直延申到阳台、大气时尚。整体空间显得宽敞明亮,线条流畅。同时,通过合理的家具摆放和动线规划,确保了空间的功能性和舒适性。整体设计强调简洁、实用和功能性。
整体的柜子以及木门的颜色大部分都选用了象牙白木纹系,能够营造出简洁、大气,有着强烈的现代感的居住环境。这种色调给人一种高级感,让空间看起来更加精致。
整体风格轻法奶油风 地砖采用1500/750依诺网红砖铺贴,柜子模压柜门整体搭配;整体高端上档次。
户型图

卧室


卫生间

餐厅

客厅






京公安网备11010502040911