90㎡二居意式极简奥赛公馆
发布时间:
2025年10月22日
小区:奥赛公馆 面积:90㎡ 户型:二居 风格:意式极简
设计说明
本方案主要从意式风格入手,是一个2室1厅1厨1卫灰调配搭的平层案例设计。该设计为客餐厅茶区一体的开放式设计,通风采光空间感俱佳。整体空间显得宽敞明亮,线条流畅。同时,通过合理的家具摆放和动线规划,确保了空间的功能性和舒适性。整体设计强调简洁、实用和功能性。
在吊顶设计中,公区去繁就简,平顶与无主光源完美适配,而卧室只运用了单眼皮修饰,以装饰灯为点缀。墙顶面融为一体运用灰色搭配软饰进行点缀。
整体的柜子以及木门的颜色大部分都选用了深灰搭配,前后进深和家具融合,空间融合留白,营造出简洁、大气,有着现代强烈视觉感的居住环境。这种色调给人一种高级感,让空间看起来更加精致。
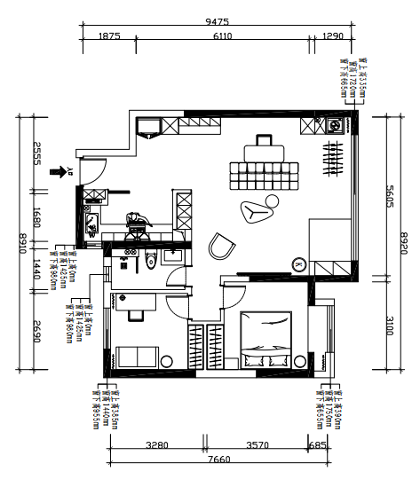
户型图

书房

卫生间

卧室

餐厅

客厅

