152㎡四居现代简约风格万科东望
发布时间:
2025年10月22日
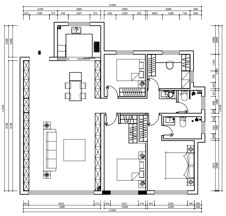
小区:万科东望 面积:152㎡ 户型:四居 风格:现代简约风格
设计说明
本方案是一个4室2厅1厨2卫的一个平层住宅,业主要求追求简约高尚的设计风格对意式的喜好偏高,意式轻奢风格为主题主要以意大利设计风格和轻奢理念融合,既有精致感又有舒适感,通过材质、色彩搭配、线条的把控,营造出高雅,大气且舒适的居住环境,让设计中简约而优雅又不失温度
本方案以黑色、棕色和白色为主色调,通过这些颜色打造出安静且高级的主色调环境,吊顶以无主灯吊顶暗藏灯带和射灯打造光的氛围感,营造柔和的氛围,搭配一些吊灯更加有了意式氛围。
户型图

卧室

客厅






京公安网备11010502040911