127㎡四居现代简约风格万科知园
发布时间:
2025年11月14日
小区:万科知园 面积:127㎡ 户型:四居 风格:现代简约风格
设计说明
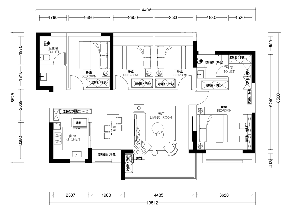
本户型为新希望万科知园127m²套四双卫生间户型,位于四川成都成华区仙韵四路77号。本案业主是85后夫妻,男业主是做芯片类的工作,女业主是公立小学老师,有居家办公的习惯。喜欢那种造型简单,尽量不大改动,整体空间明亮一些的。
客餐厅
本案餐厅与客厅为同一个空间。岩板浅色系餐桌搭配撞色餐椅。浅色系沙发,提亮整个空间,电视背景墙不做造型,乳胶漆饰面。顶面采用边顶加灯带的吊顶方式,使得整个空间的灯光更有层次感。客厅阳台不做吊顶,不拘泥与传统吸顶灯的形式,而采用吸顶条形灯。利用餐厅旁边飘窗,在整个客餐厅空间增加一组储物柜
主卧
主卧的色调与客餐厅色调保持一致,墙面刷浅色乳胶漆,地面原木色木地板,脚感舒适质感强烈。业主在反复思量,最终还是将原来开发商给到的床位置调换,床尾位置也为夫妻二人考虑办公书桌,在休息与工作中间自由转换。
衣帽间
原主卫生间墙体拆除,压缩主卫生间空间,增加一组衣柜。步入式的衣帽间,也将主卫生间和主卧连接成一个整体。
户型图

玄关

客厅

餐厅

卧室





京公安网备11010502040911