193㎡四居现代简约风格白桦林居
发布时间:
2025年12月23日
小区:白桦林居 面积:193㎡ 户型:四居 风格:现代简约风格
设计说明
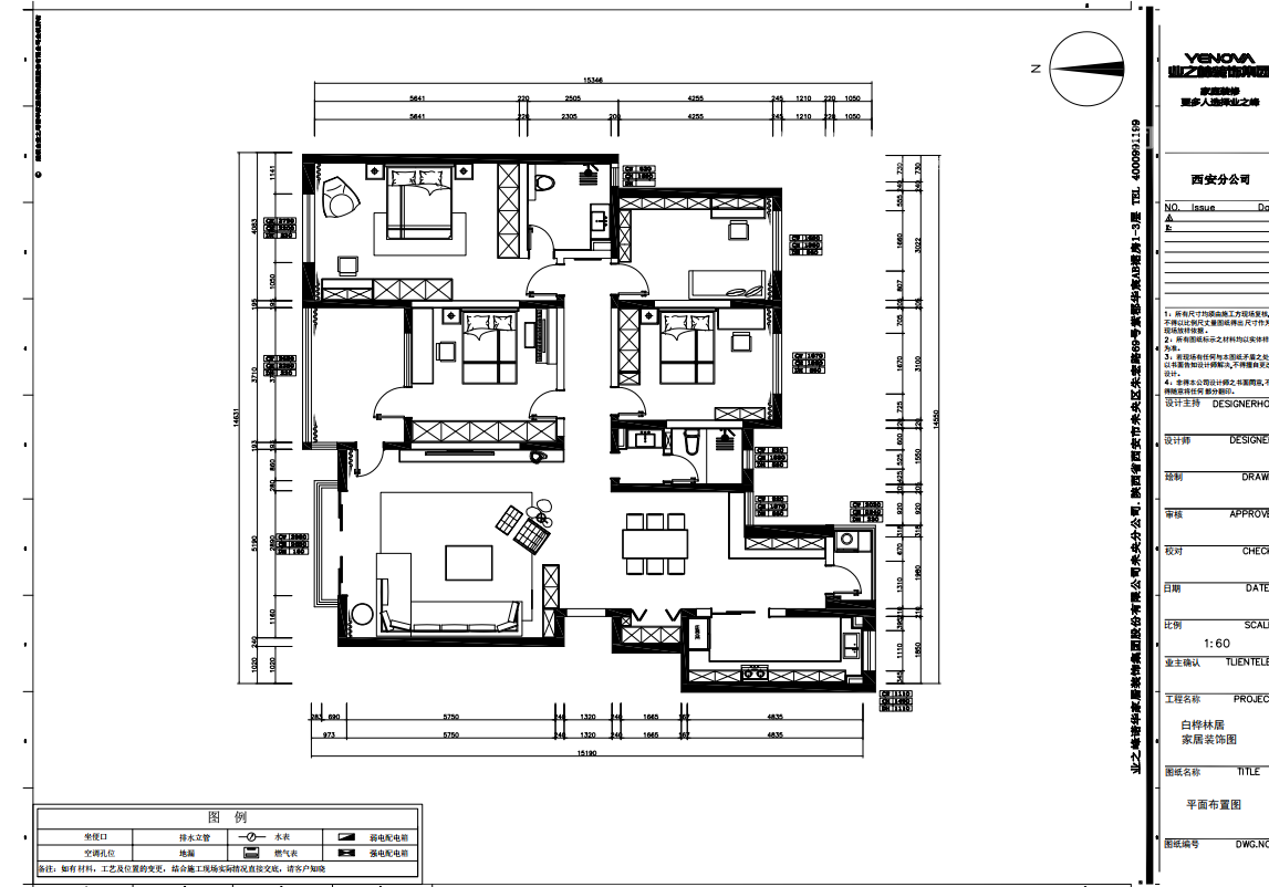
本次设计项目为白桦林居住宅平面布置设计,立足居住者的生活需求与空间使用逻辑,以“功能化、人性化、一体化”为核心设计原则,结合户型原始结构特点,对空间进行科学分区、动线优化与细节打磨,既保证居住的实用性与舒适度,又兼顾空间的通透感与美学性,打造适配现代家庭生活的居住环境。
本户型为多层住宅户型,建筑面积适中,原始结构具备空间方正、采光面充足的优势。设计定位为现代简约风格的宜居型家庭空间,适配三口及以上家庭的居住需求,注重空间的功能复合性与收纳体系的完整性,同时通过空间动线与尺度的把控,提升居住的便捷性与体验感。
动线规划
设计遵循“公私分区、洁污分离”的动线原则:入户动线直达客餐厅,不穿越私密卧室区域;卧室区域集中布局于户型内侧,与公共空间形成明确的动静分区,减少公共活动对私密休息的干扰;厨卫动线与卧室、客厅动线互不交叉,厨房的后勤动线与餐厅的用餐动线衔接自然,公共卫浴的动线覆盖次卧与公共区域,提升使用效率。
尺度把控
各空间的尺度设计贴合人体工程学:客厅沙发与电视背景墙的距离、餐厅餐桌的摆放尺度、卧室床具与衣柜的间距,均按照日常使用的舒适度进行规划;厨卫空间的操作台面高度、卫浴洁具的安装尺度,也依据人体工程学标准设计,保障不同年龄段居住者的使用便捷性。
收纳系统设计
本次设计将“收纳一体化”融入各空间,打造分层分类的收纳体系:
• 入户玄关:玄关柜采用“下空上柜+中间开放格”的设计,下空区域放置常穿鞋,上层柜体收纳换季鞋物与杂物,开放格可摆放装饰或常用小物件;
• 客餐厅:电视背景墙增设收纳柜体,餐厅设置餐边柜,分别收纳客厅的影音设备、杂物与餐厅的餐具、食材等;
• 卧室:主卧衣帽间采用定制柜体,划分挂衣区、叠放区、抽屉区,次卧配备衣柜,儿童房预留定制书桌与柜体的空间,满足衣物、书籍、玩具的收纳;
• 厨卫:厨房橱柜采用地柜+吊柜的组合,利用转角空间设计拉篮,卫浴空间设置浴室柜与壁龛,收纳洗漱用品与清洁用具。
综上,本次平面布置设计围绕家庭居住的核心需求,从功能、动线、收纳、采光、人性化等多维度出发,最大化挖掘户型的空间潜力,既保证了居住的实用性与便捷性,又营造了舒适、宜居的生活氛围,实现了功能与美学的有机统一。
户型图

书房

卧室



餐厅

客厅






京公安网备11010502040911