139㎡四居现代简约风格锦云天府
发布时间:
2025年11月07日
小区:锦云天府 面积:139㎡ 户型:四居 风格:现代简约风格
设计说明
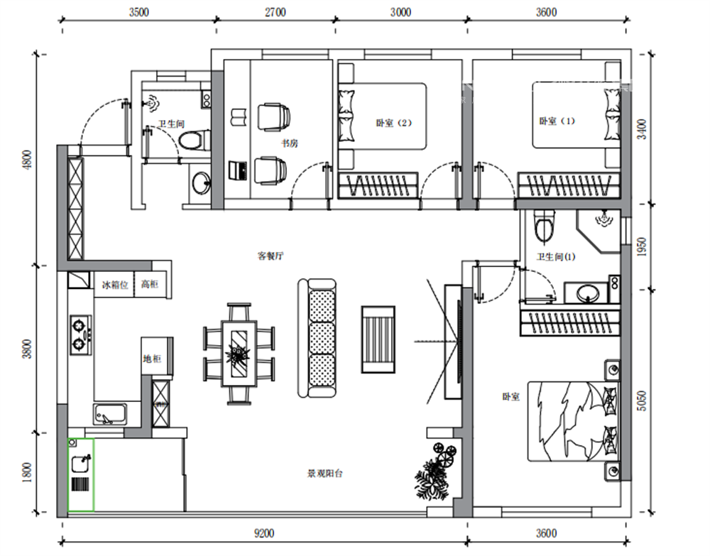
天府新区锦云天府 139㎡户型,以 “简而有致,功能先行” 为核心,深度诠释现代风格的简约本质与实用内核,在开阔空间中平衡美学表达与日常居住需求,为居者打造兼具质感与舒适度的现代生活场域。
设计遵循 “去繁存真” 的原则,摒弃冗余装饰,以利落的直线条、纯粹的色彩搭配勾勒空间轮廓 —— 整体以浅灰、米白为基底,局部融入低饱和的莫兰迪色或金属线条点缀,既保证视觉通透感,又通过细节提升空间精致度。考虑到 139㎡的开阔户型优势,公共区域采用客餐厅一体化布局,通过顶面简约平顶与地面材质分区(客厅通铺柔光地砖、餐厅局部衔接实木踏板)自然划分功能边界,动线流畅无阻隔,既满足家人互动需求,也适配亲友聚会场景;厨房与餐厅之间可设置半开放式玻璃隔断,兼顾操作便利性与空间通透感,避免油烟扩散的同时,保持视觉联动。
私密区域注重 “功能适配”:主卧以静谧氛围为核心,墙面采用浅咖色乳胶漆,搭配简约软包床头与顶天立地收纳柜,兼顾休憩与储物;次卧可根据需求规划为儿童房或客房,通过灵活的定制家具预留成长空间;第三间卧室改造为多功能书房,设置悬浮书桌与开放式书架,既满足办公学习需求,也可作为临时客房使用。全屋强化 “隐形收纳” 理念,通过定制柜体隐藏生活杂物,保持空间整洁;软装选择上,搭配简约布艺沙发、几何造型灯具与绿植,弱化冰冷感,传递现代生活的温度。
整体设计以专业经验适配现代家庭的居住习惯,在 139㎡的空间中,用简约的设计语言承载丰富的生活场景,让每一处细节都服务于实用与美观,最终呈现出一个 “有颜值、有功能、有温度” 的现代理想家。
户型图

书房

卧室

客厅

餐厅





京公安网备11010502040911