010-84934479
扫码快速拨号 >
扫码快速拨号

160㎡四居现代简约风格恒信·东城名筑

发布时间: 2025年11月12日
小区:恒信·东城名筑 面积:160㎡ 户型:四居 风格:现代简约风格
设计说明
功能优先,设计围绕实际使用需求展开,每一处细节都服务于实用性。凸显材质本真,常用原木、石材、金属等天然或质感清晰的材质,不刻意掩盖肌理。
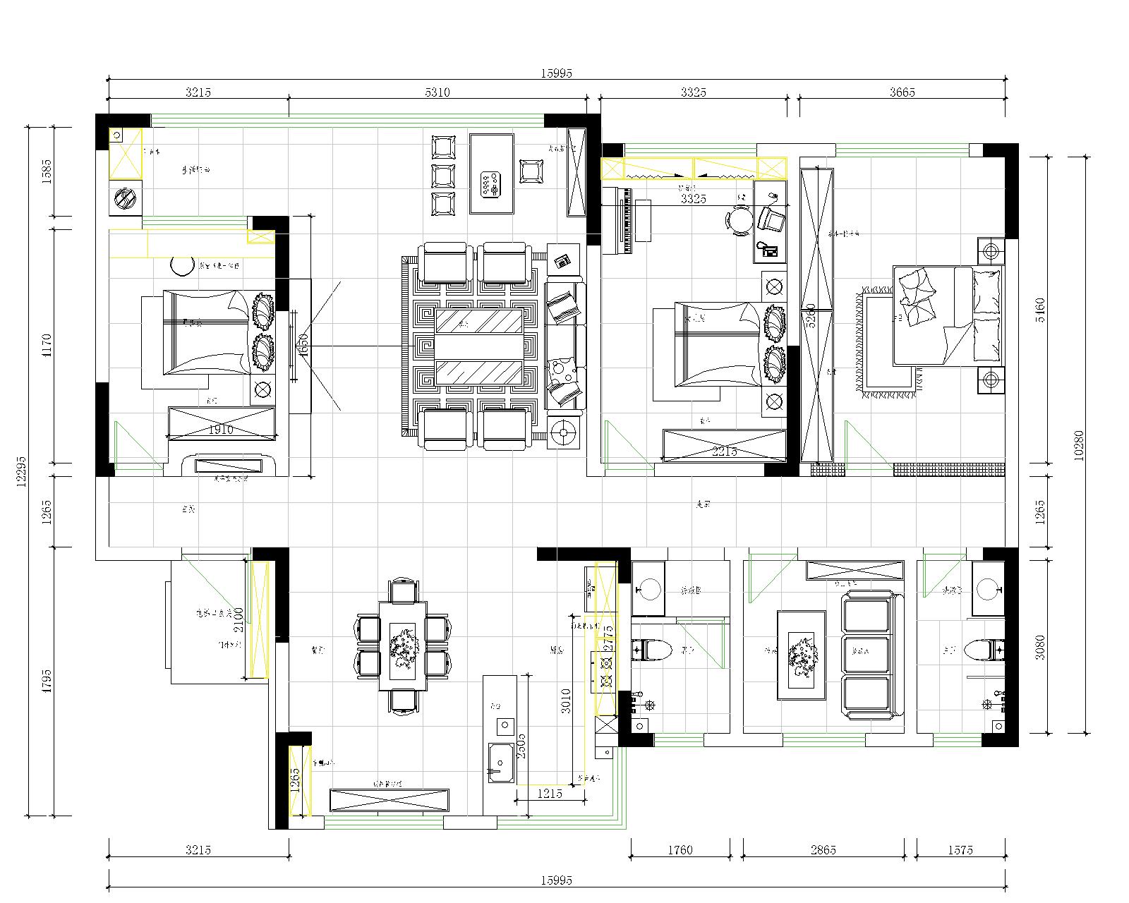
户型图
主卧室
卫生间
次卧室
户型图
大厅
餐厅
本案设计师
孙晓勇
设计总监
我家装成这样多少钱?
相关案例推荐
  • 192㎡四居现代简约风格大明宫紫檀府
    查看详情
  • 195㎡四居现代简约风格陕建翠园锦绣
    查看详情
  • 193㎡四居现代简约风格白桦林居
    查看详情
  • 176㎡四居现代简约风格蔷薇溪谷
    查看详情
  • 190㎡四居现代简约风格天谷雅舍
    查看详情
  • 143㎡四居现代简约风格保利云谷天汇花园
    查看详情
  • 143㎡四居现代简约风格金地清峯上
    查看详情
  • 205㎡四居现代简约风格中粮奥体壹号
    查看详情
  • 143㎡四居现代简约风格北川万达
    查看详情
  • 143㎡四居现代简约风格邦泰誉江境
    查看详情
  • 143㎡四居现代简约风格龙湖粼云天序
    查看详情
  • 127㎡四居现代简约风格万科知园
    查看详情
  • 160㎡四居现代简约风格红星·紫御半山
    查看详情
  • 118㎡四居现代简约风格旭景清园
    查看详情
  • 170㎡四居现代简约风格凤华·百丽澜庭
    查看详情
  • 139㎡四居现代简约风格锦云天府
    查看详情
  • 178㎡四居现代简约风格北大资源紫境东来项目
    查看详情
  • 123㎡四居现代简约风格电建地产泷悦长安
    查看详情
  • 150㎡四居现代简约风格团结村
    查看详情
  • 展开
报价计算器
免费量房
免费设计
回到顶部