140㎡四居现代简约风格华润置地紫云府
                  发布时间:
                  2025年10月31日
                
 小区:华润置地紫云府 面积:140㎡ 户型:四居 风格:现代简约风格
设计说明
 现代风格,聚焦于简约而明晰的线条轮廓,摒弃繁复装饰,力求空间纯粹。其设计理念强调功能性至上,布局上注重家具的实用性与空间的开放融通,旨在打造一个既整洁又高效的生活环境。这一风格深刻融合了现代科技与设计美学,营造出既舒适又不失现代气息的生活空间。
 
二:空间布局/阳台与客厅无缝衔接,极大拓宽了视觉与空间的实用,居室依然保持4居,父母与孩子有各自安静的独立空间。
 三、色彩与材质
现代风格家具以其简约流畅的线条、鲜明的色彩对比为特色,展现出独特的视觉张力。钢化玻璃、不锈钢等新型材料的运用,不仅增强了家具的现代感,也赋予其前卫不羁的个性。这些材料作为辅助装饰,巧妙平衡了空间的冷硬与温暖,营造出既理性又不失温情的居住氛围。
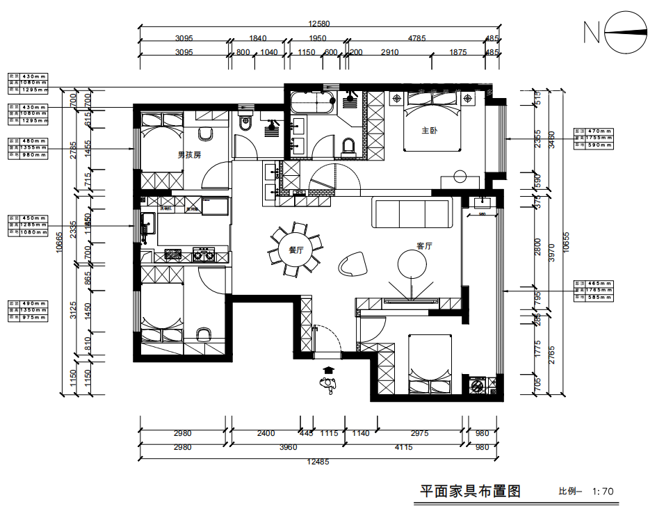
户型图
 
卧室
 


卫生间
 
厨房
 
玄关
 
客厅
 


 
 


 京公安网备11010502040911
京公安网备11010502040911