145㎡四居轻奢风格龙湖翠微清波
发布时间:
2025年11月14日
小区:龙湖翠微清波 面积:145㎡ 户型:四居 风格:轻奢风格
设计说明
本户型为龙湖翠微清波建筑面积145㎡的平层,紧邻成都青羊区金福路419号,靠近成都西站。本案业主是90后新婚夫妻,男业主是物业经理,女业主是做项目招投标的,买的二手房也是婚房,偶尔父母也会来住一下。喜欢那种金属质感,颜色跳脱一些的。希望多一些储物,实用为主,美观为辅。
客厅
客厅里的设计要打破传统的设计,将实用主义发挥到极致。业主要求就要尽量多的储物,等有了小孩,父母也会过来一起住,需要保留了电视,希望电视背景墙可以做一排储物柜,储藏杂物,柜子内嵌电视机,这样即保留了客厅的简洁,大气,干净,又增添了实用性。顶面做设备中央空调,采用边顶叠级线条的方式,这样既没有压低层高,也有高低层次感。
餐厅
餐厅与西厨形成一个无阻隔的空间,可以相互借用空间,动线流畅,操作方便。玫瑰金餐桌餐椅,奢华不浮夸。灰色橱柜柜体与深灰色柜门板的搭配使整个空间层次分明,干净温馨整洁。餐厅与客厅之间有承重墙,顶上有梁,因此在保证层高的方式,顶面采用平梁吊顶的方式。
主卧
主卧的色调与客餐厅色调保持一致,墙面浅色乳胶漆,地面进口深灰色木地板,脚感舒适质感强烈。业主比较忌讳卫生间对床头和床中,因此调换床头位置,在旁边以玻璃砖的形式增加空间的造型感以及进门位置的光线。床尾一排衣柜,储物足够。
次卧(小孩房)
房间定制榻榻米加书桌的形式,既把飘窗利用起来了,整体协调性也更好。进门左手边一组大衣柜,作为日常储物空间,拿取方便。飘窗上做一组柜子,作为小朋友在床上玩耍或者睡前讲故事的一个储物空间。床头做一组大衣柜,储物一些不常用换季衣物以及棉絮被套。
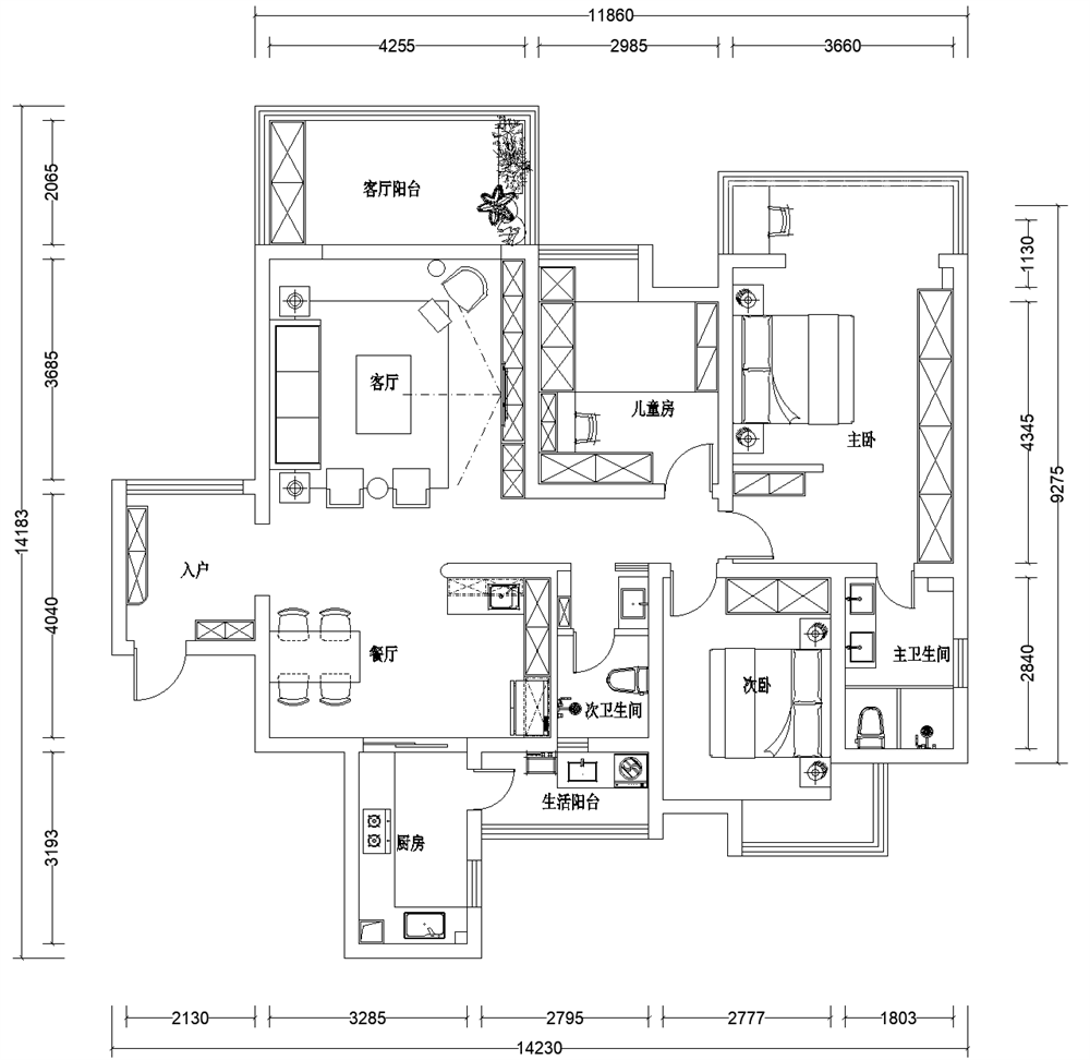
户型图

客厅

卧室

餐厅

次卧室





京公安网备11010502040911