137㎡四居轻奢风格龙湖粼云天序
发布时间:
2025年09月30日
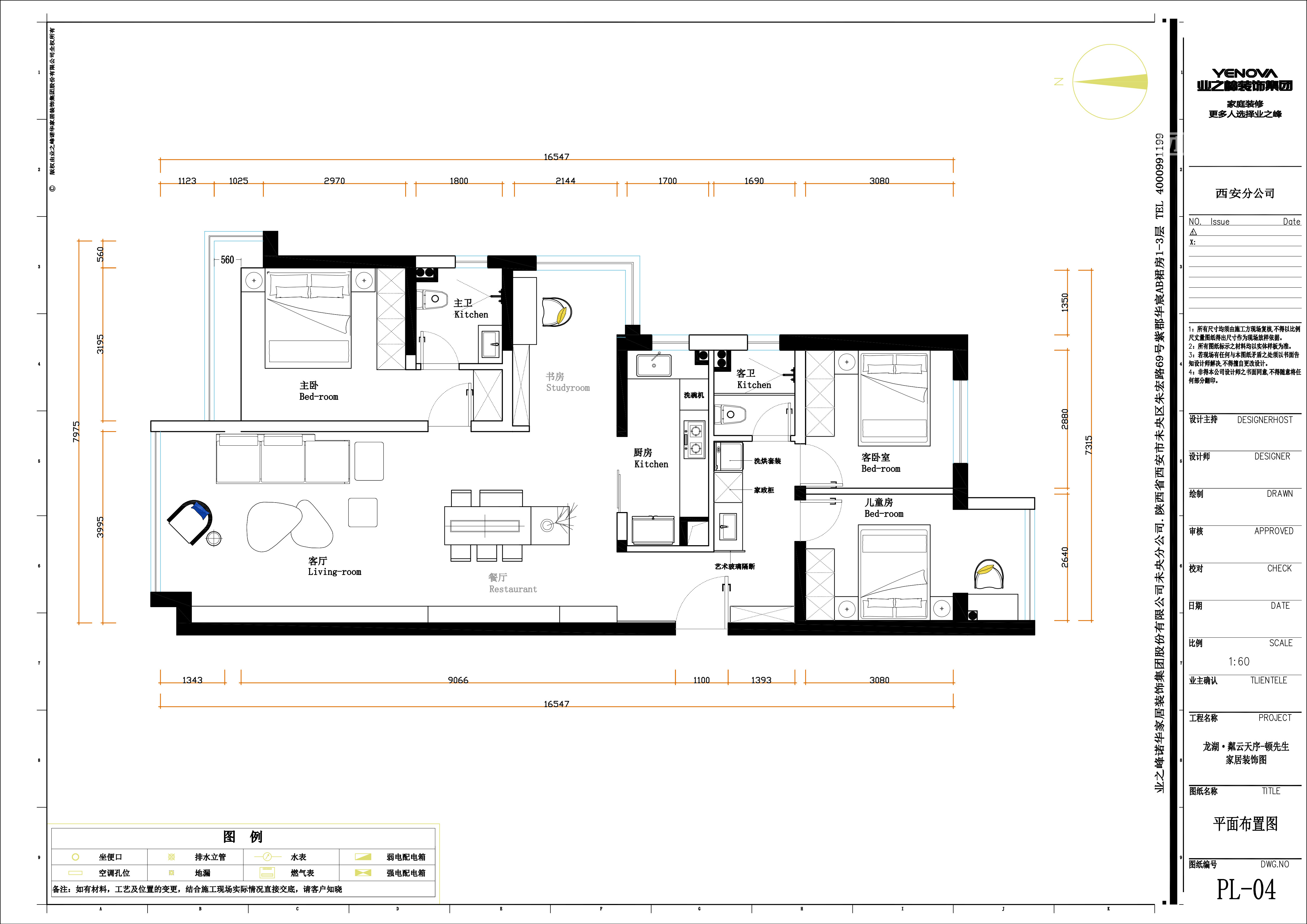
小区:龙湖粼云天序 面积:137㎡ 户型:四居 风格:轻奢风格
设计说明
本案风格定义是现代轻奢,整体户型比较规整,业主需要比较多的收纳空间,兼具美观性和实用性,硬装上通过简单的吊顶处理来进行空间的分割,加上通过精心搭配的软装,让整个空间充满活力。客厅的顶面做了双眼皮吊顶的造型配合线性灯的设计,有了氛围灯光的衬托,让空间更有层次;原本客厅阳台位置的洗衣机,挪到了客卫干区做了洗烘套装,使得客厅空间更加整洁美观。
户型图

卧室

卫生间

休闲区

客厅






京公安网备11010502040911