190㎡复式现代简约风格德商御府天骄
发布时间:
2025年11月14日
小区:德商御府天骄 面积:190㎡ 户型:复式 风格:现代简约风格
设计说明
本户型为德商御府天骄建筑面积190㎡的两层上叠别墅,紧邻剑南大道一段辅路的祥鹤三街上。本案业主是80后离异单身男士,做金融贷款行业的,最开始想出售该房子,后考虑小孩上学以及自己居住,偶尔父母也会来住一下,喜欢那种质感强,高端大气上档次的。希望在整个空间里尽量多一些造型。
玄关
玄关与客餐厅区域连成一个整体,进门左手边鞋柜,右手边是上二楼的楼梯,再往内即是餐厅,起到空间延伸的作用。
客餐厅
本案餐厅与客厅为同一个空间。岩板系餐桌深色餐椅,沉稳大气。沙发黑色,质感强烈,电视背景墙岩板上墙,局部点缀饰面板。顶面采用平顶加圆弧边顶的吊顶方式,同时在边顶上增加反光灯带,使得整个空间的灯光更有层次感。客厅阳台搭建完毕以后采用的是平顶吊顶方式,灯光设计也采用轨道灯具及筒灯的形式,进一步的提高了整个客餐厅区域的灯光效果。
书房
书房为多功能室,再满足办公,学习的同时还要有收纳和展示的作用。业主平时也可以在此看书学习,搭配沙发床,过节期间家里亲戚朋友来玩时也可多一个房间。
一楼主卧
一楼主卧的色调与客餐厅色调保持一致,墙面刷浅灰色乳胶漆,地面原木色木地板,脚感舒适质感强烈。业主比较忌讳卫生间对床头和床中,因此调换床头位置,在旁边以玻璃砖的形式增加空间的造型感以及进门位置的光线。床尾一排衣柜,储物足够,衣柜与一楼主卧卫生间浴室柜连成一个整体。
次卧(小孩房)
墙面浅灰色乳胶漆,顶面不做吸顶灯,以明装筒灯作为照明光源,墙面一副黑白灰挂画,顶面采用叠级吊顶,视觉上更有层次感。
二楼主卧(主人房)
主人房墙面浅色乳胶漆,床头位置正对落地大窗户,本案朝向为东西朝向,早上起来一缕初升太阳照在房间内,金色的光芒洒满整个房间,开启一天的美好生活。衣柜靠内设置,搭配二楼过道外的衣帽间,储物空间足够。落地窗下做满书桌,下雨的时候坐在窗前看着外面淅淅沥沥的雨,闲暇之余,可以看看书,喝喝茶。
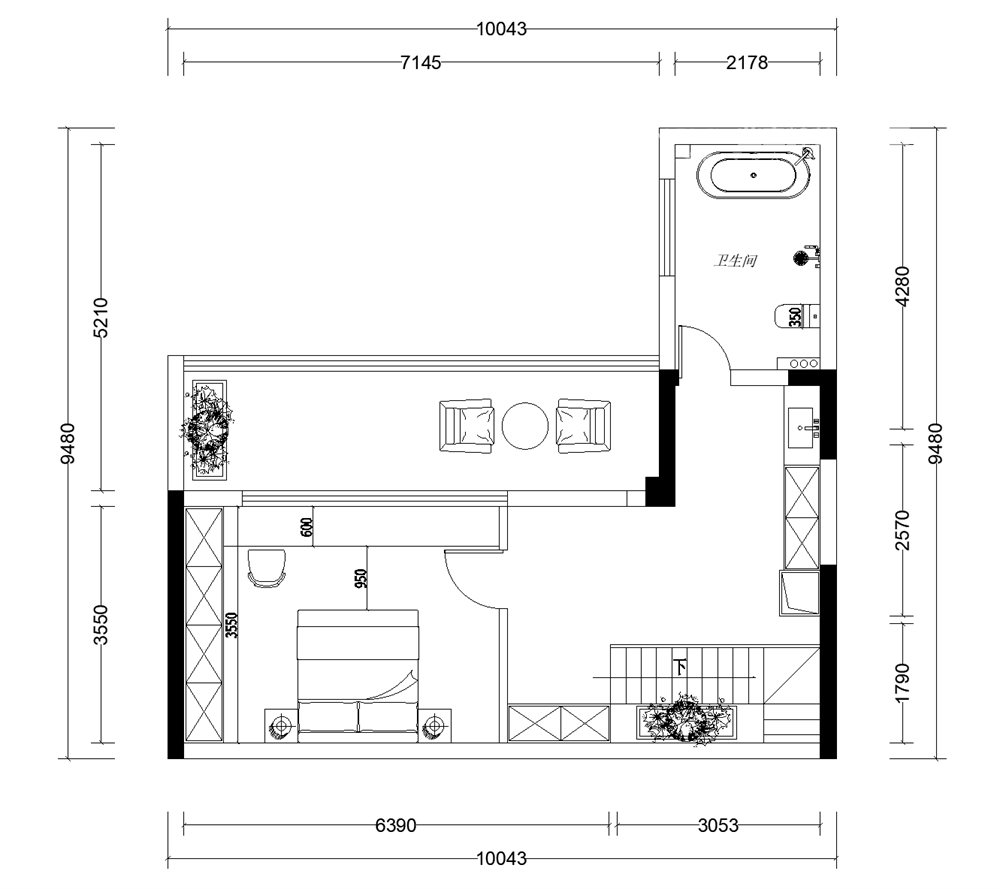
户型图


餐厅

次卧室


主卧室

客厅





京公安网备11010502040911