220㎡复式现代简约风格邦泰国际社区
发布时间:
2025年12月02日
小区:邦泰国际社区 面积:220㎡ 户型:复式 风格:现代简约风格
设计说明
设计风格:现代轻奢×未来感细节风
以“精致都市居停”为核心,通过极简线条、高级材质与创意细节,塑造兼具质感与个性的现代客厅空间。
空间布局与功能设计:
1. 层级化采光:结合嵌入式筒灯、线性灯带与大窗自然光,构建“柔和主光+氛围辅光”的照明体系,适配不同生活场景;
2. 互动型核心区:以皮质沙发+单人休闲椅围合茶几,形成舒适社交圈,同时电视墙整合壁炉元素,增强空间温馨感与功能复合性;
3. 创意结构亮点:右侧悬浮式金属楼梯(搭配玻璃护栏)既实现空间分层,也以工业风线条成为视觉焦点,平衡整体轻奢调性。
材质与色彩策略:
- 主色调:低饱和暖棕+高级灰+浅米,奠定沉稳雅致的基底;
- 材质碰撞:哑光皮质家具的柔润、大理石地面的冷冽肌理、金属构件的利落质感,通过材质对比提升空间精致度;
- 细节点睛:宇航员摆件等未来感软装,弱化轻奢风格的厚重感,注入年轻化、个性化的生活趣味。
设计核心:以“克制的奢华”为原则,通过材质质感、光影层次与创意细节的结合,实现“舒适实用”与“美学个性”的双重统一。
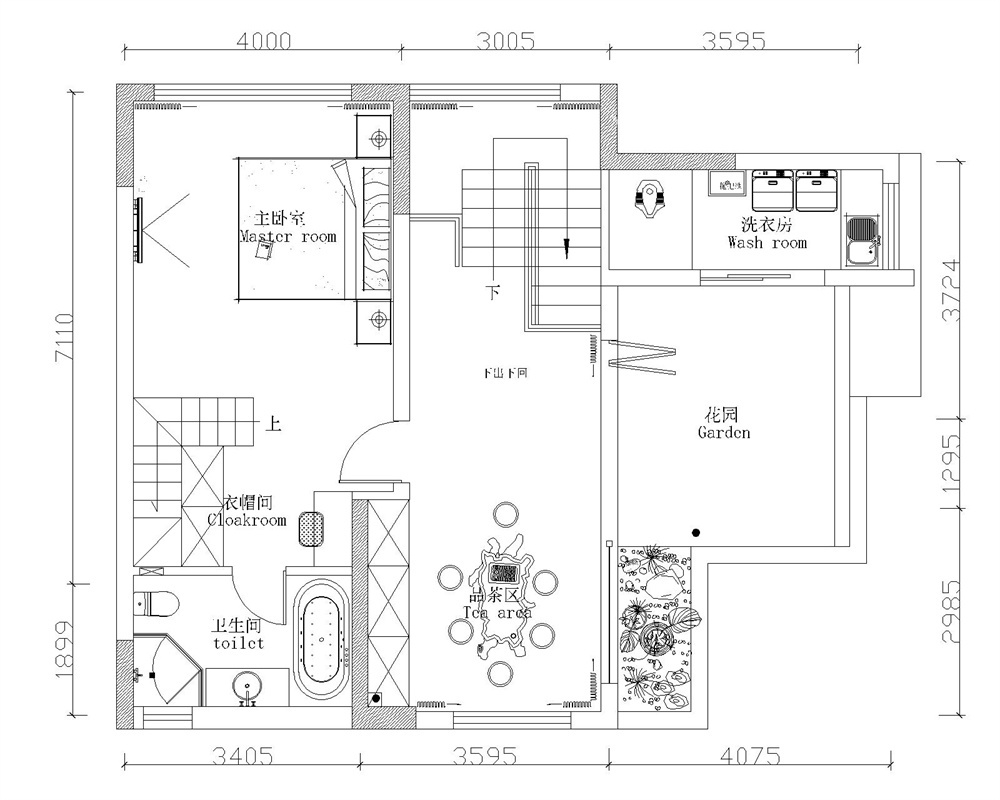
户型图


客厅





餐厅


卧室







京公安网备11010502040911