82㎡二居现代简约风格嘉州壹号院
发布时间:
2025年12月02日
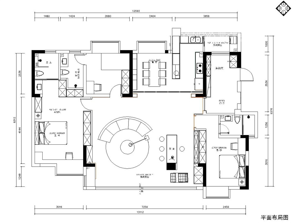
小区:嘉州壹号院 面积:82㎡ 户型:二居 风格:现代简约风格
设计说明
设计风格:现代简约×自然松弛风
以“轻量感生活”为核心,融合极简线条与自然材质,打造兼具通透感与舒适感的都市居家场域。
空间布局逻辑:
1. 通透化处理:采用大面积落地窗+极窄边框设计,最大化引入自然采光,同时将城市景观转化为空间“动态背景”,弱化室内外边界;
2. 功能柔化:摒弃传统厚重沙发组合,以低饱和度酒红色模块沙发+圆形石纹茶几,营造无压迫感的社交核心区,适配独处、轻聚会等多元场景;
3. 收纳与美学结合:侧边定制木饰面+局部墨绿内嵌柜,既满足日常收纳需求,深色点缀也形成视觉落点,平衡空间浅色调的轻盈感。
材质与色彩策略:
- 主色调:米白墙面+浅木色地板,奠定柔和基底;
- 材质碰撞:绒面沙发的柔、石材茶几的肌理、金属落地灯的冷感,通过材质层次增强空间质感,同时保持整体调性统一;
- 细节点睛:少量绿植、陶瓷摆件作为自然元素补充,弱化都市空间的冰冷感,强化“松弛居家”的氛围。
设计核心:以“去装饰化”的手法,通过空间尺度、材质温度与功能适配,实现“简约而不冷淡,舒适而不冗余”的当代居住体验。
户型图

休闲区

客厅

卧室

餐厅





京公安网备11010502040911