125㎡二居现代简约风格金南园
发布时间:
2025年11月22日
小区:金南园 面积:125㎡ 户型:二居 风格:现代简约风格
设计说明
计行言听------细节里的归属感
项目概况:此项目位于成都市华阳街道金南园,此案为老小区旧房翻新。小区外部地理位置优越,教育交通购物配套成熟,环境优美,喧嚣的大都市里难得的静谧。
项目背景:我们的业主是三口之家,家庭温馨和谐,客户也是在突然之间想起我们的家需要重新装修一下了。男主人是很严谨的,动手能力也是我对业主最深的印象,在家里喜欢自己研究一些好的事物;其中在家里对智能系统和花园整个的水循环及果蔬种植很有心得。平时在家喜欢养鱼,垂钓,在自己屋顶花园种种花,种点有机蔬菜,果树等;喜欢亲近大自然,比较注重健康,有一只很可爱的狗子。嫂子是超级贤惠的,男主人的成功离不开嫂子的鼎力支持,没有一点架子,蕙质兰心。一位上大学的时尚女儿,也是善解人意,德才兼备。业主家是女士决定风格和色调,男主人负责装修的具体实施及方案敲定。家里幸福美满,和气致祥。要求室内收纳空间好用充足且干净整洁,简约风格,要温馨感,把智能设备和鱼缸的观赏考虑进去。
设计理念:计行言听,细节里的归属感;在设计中探寻生活的温度和本质。
设计风格:现代简约
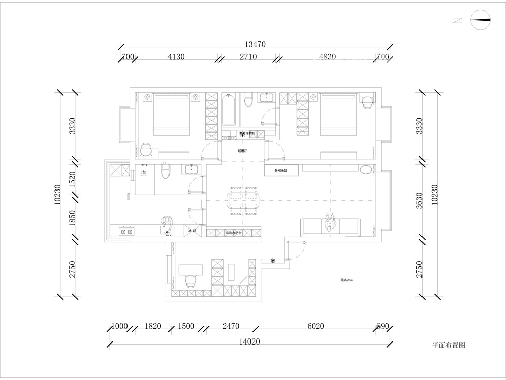
空间规划:打破老房子原有结构户型;客厅空间拓宽过道区域,纳入客厅做整体设计,增加餐厅的空间尺寸感。过道卧室对开门规划设计增加室内空气对流及采光。打通餐厅及厨房,引进自然光线,让客厅更具丰富性。卫生间门采用隐形门设计,扬长避短。让整个空间最大化通透大气,收纳增加,整洁却又不失品质细节。
设计元素:颜色以白色为主的背景色,主体色选用浅暖系木纹,浅灰色防石材大地砖,局部点缀深色系黑檀木纹,石材及金属色。家具陈设上采用布艺及皮革为主,尺寸比列适中,内敛且大气,打造细腻温馨的感觉。借用业主需求,搭配好鱼缸,局部点缀绿植及装饰挂画等,营造出生机及空间的灵活性。
户型图

厨房

餐厅




卫生间

客厅


卧室






京公安网备11010502040911