93㎡二居现代简约风格天泰蓝山
发布时间:
2025年12月26日
小区:天泰蓝山 面积:93㎡ 户型:二居 风格:现代简约风格
设计说明
本案其装修风格为现代简约风格,但简约而不简单,现代简约家装设计理念的主要特点是简单、大方、流畅,注重线条的整体感和空间的开放感。而设计师根据客户的需求、喜好、生活方式等方面来设计,旨在创造一个和谐、舒适且功能齐全的居住空间,同时满足现代家庭的多样化需求。
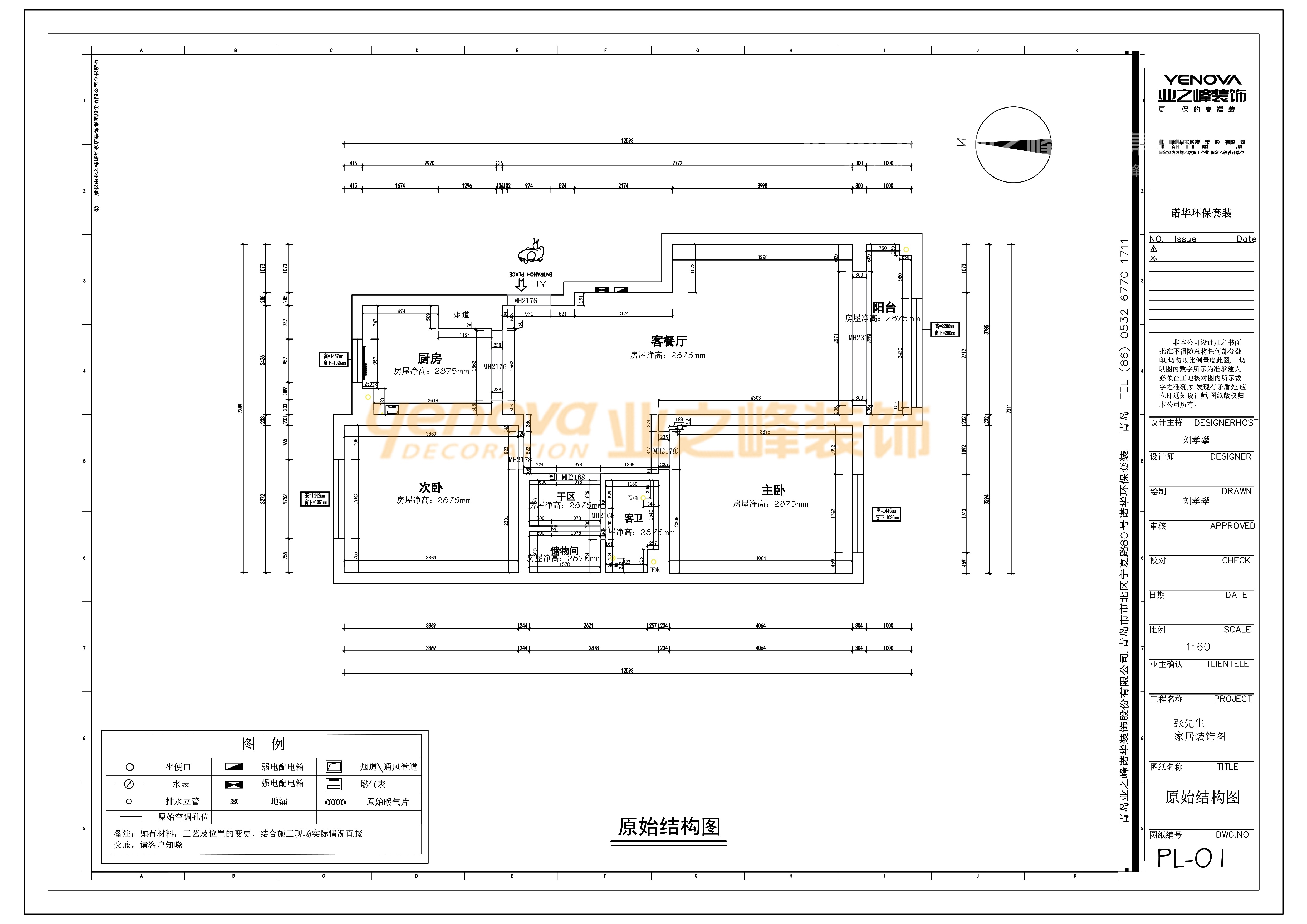
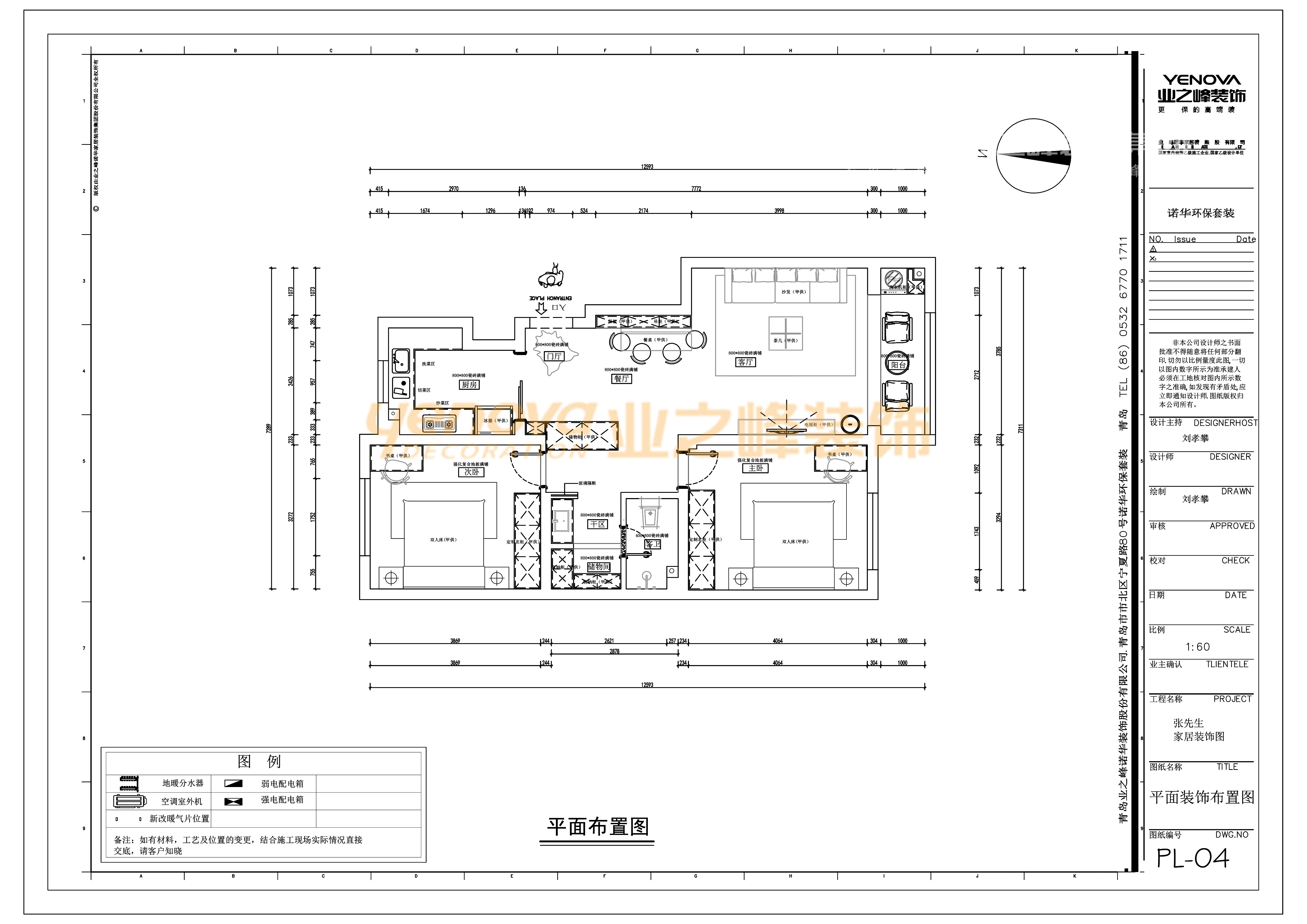
在设计上,客户想要干湿分离的卫生间,所以,打破原有卫生间的布局,增加卫生间的功能性,使一分离变成两(干湿)分离的卫生间,在增加功能性的同时,也加大了整体的储物空间。
在空间搭配上,通过用适度的材料、色彩来营造自然而温暖的空间,空间整体以木色、暖白色等自然色系为基础色调,打造宁静、质朴的氛围,大量运用木材、石材、棉麻、丝等天然材质,展现材料的自然质感和纹理,让空间充满自然的温暖与质感。通过留白手法,使其空间适当留白,营造一种安详感;在留白手法的基础上,再通过点缀色的应用,从而打破单调的整体效果,给客户的生活留下一丝悦动。
户型图


次卧室

主卧室

厨房

餐厅

客厅








京公安网备11010502040911