136㎡四居原木风格中海学仕里
发布时间:
2025年12月26日
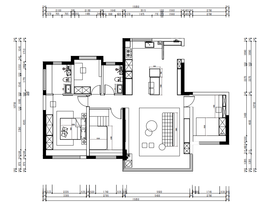
小区:中海学仕里 面积:136㎡ 户型:四居 风格:原木风格
设计说明
本案的设计风格为极简原木。业主是自住,工作主要是西安本地,本设计以“少即是多,自然共生”为核心,剥离繁复装饰,将原木的温润质感与极简的克制美学相融合,打造去风格化、重体验的居住空间,实现功能与诗意的平衡,让居者在简约空间里感受自然质朴的治愈感。客户注重小孩房树屋设计。
户型图

卧室


卫生间

餐厅

厨房

客厅





京公安网备11010502040911