114㎡二居现代简约风格东镜风华
发布时间:
2025年12月24日
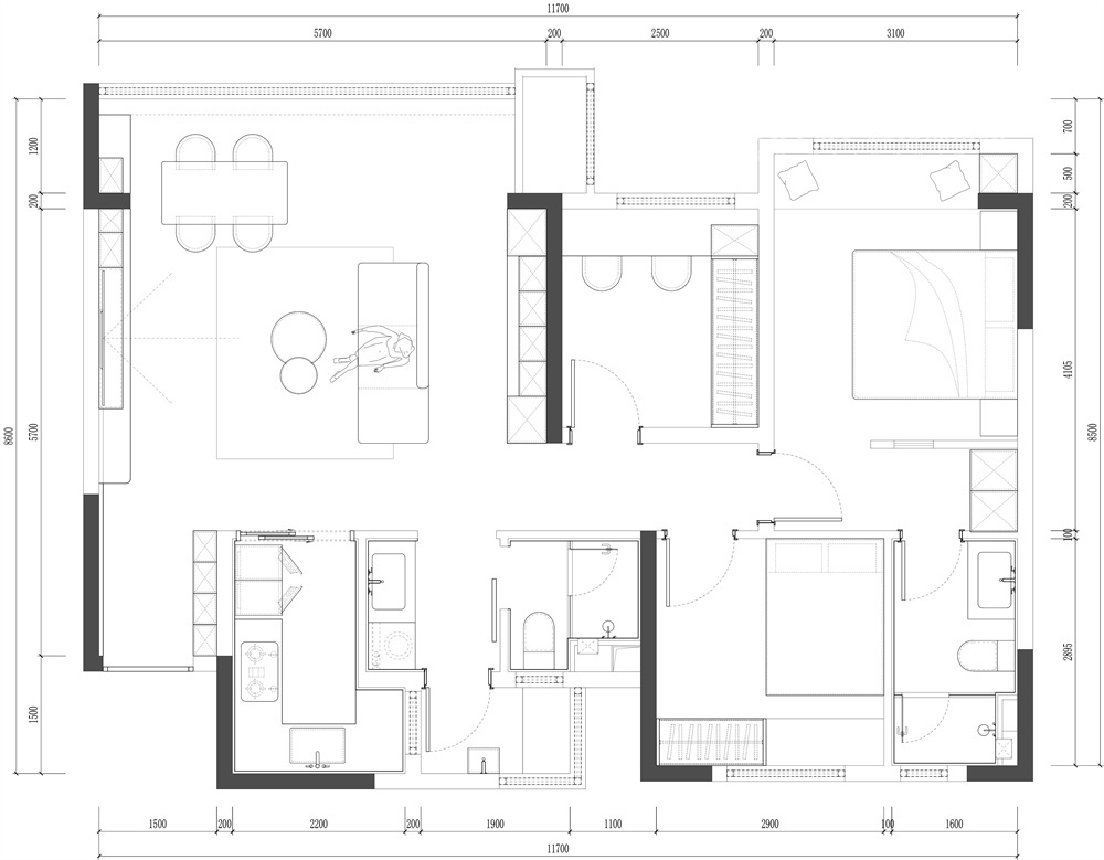
小区:东镜风华 面积:114㎡ 户型:二居 风格:现代简约风格
设计说明
本设计以现代简约风格为核心,采用浅木色与白色为主调,通过自然材质的细腻纹理与柔和色调,营造出温馨、舒适且富有质感的居住氛围。空间布局上,注重功能性与美学的平衡:客厅采用开放式设计,通透开阔,搭配落地窗引入充足自然光,增强空间流动性;卧室以舒适雅致为基调,选用柔和的灯光与简约家具,打造宁静的休憩环境;书房则强调收纳与功能的结合,内置定制书架与工作台,既满足储物需求,又提升工作效率。整体设计摒弃冗余装饰,以简洁线条与实用布局为核心,通过浅木色与白色的和谐搭配,强化空间的自然感与现代感,最终呈现出一个简洁实用、充满生活气息的居住空间。
户型图

次卧室


客厅

主卧室

书房





京公安网备11010502040911