120㎡二居原木风格十里风和
发布时间:
2025年12月24日
小区:十里风和 面积:120㎡ 户型:二居 风格:原木风格
设计说明
侘寂风设计以暖棕与米白为主调,通过自然材质与留白美学,营造出质朴而富有禅意的居住空间。墙面采用微水泥或肌理涂料,保留原始质感;地面铺设浅色原木地板,与藤编、亚麻等软装形成冷暖对比。家具以低矮木质茶几、沙发为主,线条简洁流畅,搭配粗陶器皿、枯枝等装饰,呼应“不完美之美”。
绿植选择龟背竹、马醉木等叶片舒展的品种,置于角落或窗台,为空间注入生机。光影设计通过百叶窗、纸灯笼等柔化光线,傍晚时分辅以暖光落地灯,在墙面投射出斑驳树影,增强空间层次感。细节处点缀手作陶器、风化木摆件,强调岁月痕迹。整体空间摒弃冗余装饰,以“少即是多”的理念,打造出静谧舒适、富有呼吸感的居住环境,让居住者在喧嚣中寻得一方净土。
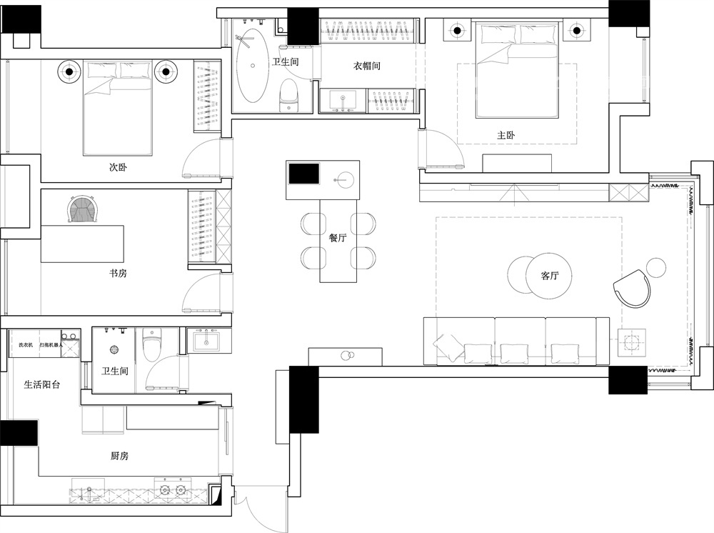
户型图

卧室









餐厅

玄关


阳台

厨房





京公安网备11010502040911