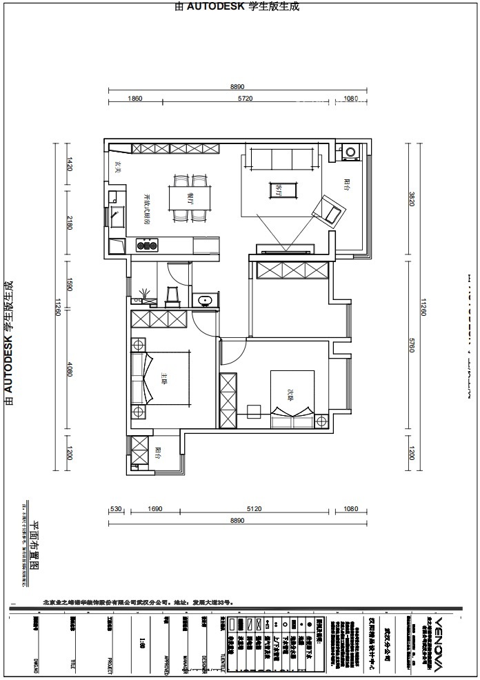
87㎡二居原木风格三镇中心
发布时间:
2025年11月11日
小区:三镇中心 面积:87㎡ 户型:二居 风格:原木风格
设计说明
设计项目: 武汉三镇中心
建筑面积:85.87平米
设计风格:原木奶油风
主要材质:木饰面等
设计说明:
本案为原木奶油风格,以简洁白色为主色调,搭配原木家具。根据业主需求,入户要求有长条换鞋凳方便老人换鞋,将厨房打开,做一个开放式厨房,使客厅空间更加宽敞明亮,将洗衣机安置在阳台,方便晾晒。通过新建墙体,隔出两个卧室和一个书房,书房设有门帘轨道,方便后期有住人需求。主灯照明营造温馨氛围,通过简洁线条与实用布局,打造明亮舒适且具温馨的居住环境。
户型图

户型图

客厅






京公安网备11010502040911