79㎡二居原木风格蔡家田A区
发布时间:
2025年10月21日
小区:蔡家田A区 面积:79㎡ 户型:二居 风格:原木风格
设计说明
家里是以木纹和白色的搭配为主。原木风给人一种舒适的居住环境。木制的柜体颜色加上奶白的沙发的颜色搭配给人一种突出了家的温馨。家具摆放简单明了,是大多人的选择。
每个房间里的储物功能都是充足的。厨房的功能十分齐全。功能房的设施齐全,有钢琴区,收纳区,和晾晒区,能同时满足业主的各种需求。
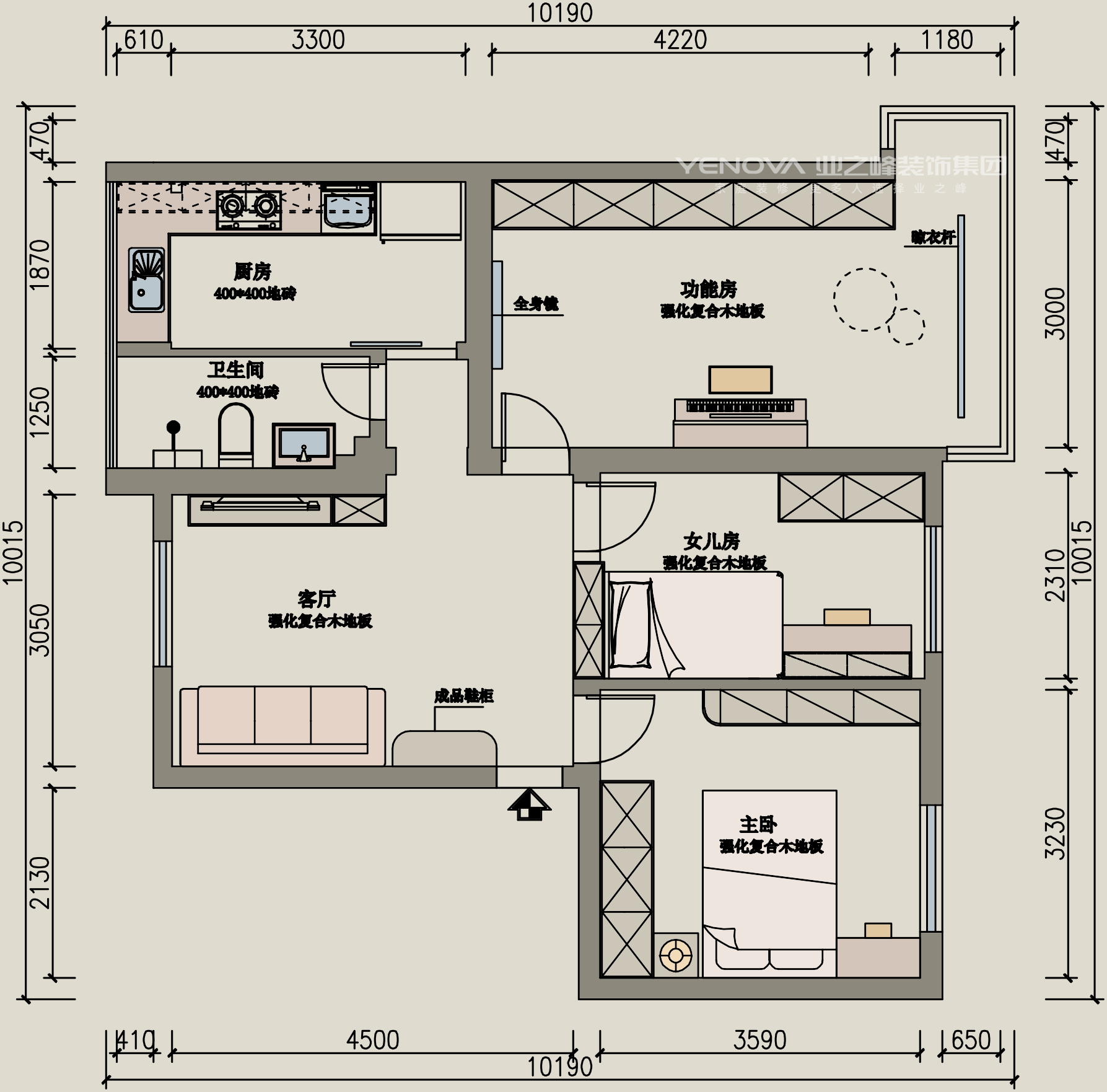
户型图

卧室

客厅

大厅





京公安网备11010502040911