85㎡二居现代简约风格时代晶科名苑
发布时间:
2020年09月20日
小区:时代晶科名苑 面积:85㎡ 户型:二居 风格:现代简约风格
设计说明
现代风格由于线条简单、装饰元素少,现代风格家具需要完美的软装配合,才能显示出美感。屋主也是一位年轻的小姐姐,喜欢的元素很多且很时尚。所以代风格家居重视功能和空间组织,注意发挥结构构成本身的形式美,造型简洁,反对多余装饰,这样显得整个房屋明亮简介。在现代简约风格中多使用一些纯净的色调进行搭配,才会给人耳目一新的惊喜。
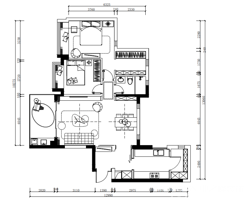
户型图

客厅



卧室





京公安网备11010502040911