116㎡三居现代简约风格上品金沙
发布时间:
2020年09月20日
小区:上品金沙 面积:116㎡ 户型:三居 风格:现代简约风格
设计说明
简约并不是缺乏设计要素,它是一种更高层次的创作境界,需要设计师深 入生活、反复思考、仔细推敲、精心提炼,运用最少的设计语言,表达出最深的设计内涵。强调功能性设计,线条简约流畅,色彩对比强烈,这是现代风格的特点。
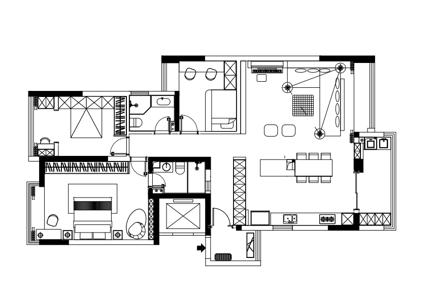
户型图

卧室


客厅




简约并不是缺乏设计要素,它是一种更高层次的创作境界,需要设计师深 入生活、反复思考、仔细推敲、精心提炼,运用最少的设计语言,表达出最深的设计内涵。强调功能性设计,线条简约流畅,色彩对比强烈,这是现代风格的特点。






