85㎡三居现代简约风格佳兆业丽晶港
发布时间:
2020年09月20日
小区:佳兆业丽晶港 面积:85㎡ 户型:三居 风格:现代简约风格
设计说明
现代简约风格,顾名思义,就是让所有的细节看上去都是非常简洁的。这是一家三口,这对夫妻很年轻,喜欢简洁大气一点的设计。现代简约风格的装修风格迎合了年轻人的喜爱,喜欢的一个安静,祥和,看上去明朗宽敞舒适的家。
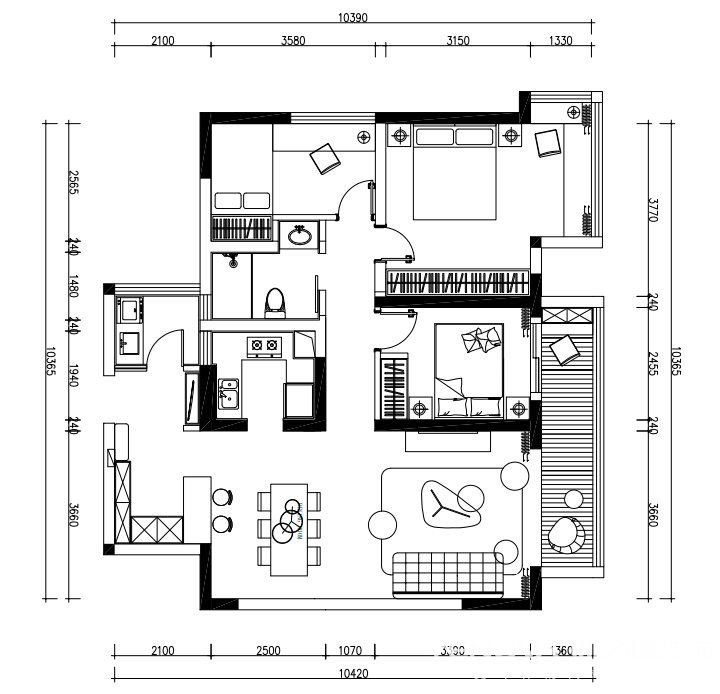
户型图

卧室

客厅



现代简约风格,顾名思义,就是让所有的细节看上去都是非常简洁的。这是一家三口,这对夫妻很年轻,喜欢简洁大气一点的设计。现代简约风格的装修风格迎合了年轻人的喜爱,喜欢的一个安静,祥和,看上去明朗宽敞舒适的家。




