88㎡二居现代简约风格80年代
发布时间:
2025年10月18日
小区:80年代 面积:88㎡ 户型:二居 风格:现代简约风格
设计说明
本案的主题为现代风格,简约利落的质材铺叙与敞明大方的格局尺度。以黑白色为主要基调,简洁实用是最大的基本特点,既体现实用性也体现了现代社会追求的精致和个性。规划选用现代简约的个性是思维追求和精力兴趣的直接反映,规划有自己特色的个性居室。
在建立个性以后,又思考到布局以完成特定需要的个性情调。选用颜色光泽较为温暖的软装来点缀,给人一种舒服安静的感觉。
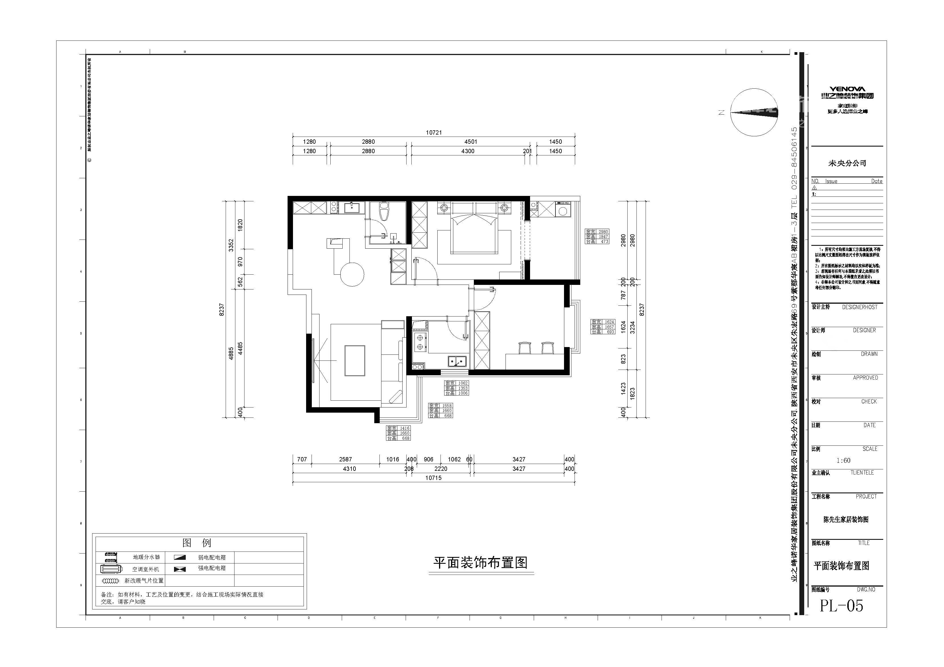
户型图

厨房

卫生间

卧室

书房

餐厅

客厅






京公安网备11010502040911