115㎡四居美式风格天府长城柏南郡
发布时间:
2020年09月20日
小区:天府长城柏南郡 面积:115㎡ 户型:四居 风格:美式风格
设计说明
简美因为风格相对简洁,细节处理便显得尤为重要,这是一家三口,希望风格大气。简约的空间设计非常含蓄,往往能起到以少胜多,以简胜繁的效果,没有多余的设计,每处都格外的干净利落,简洁而优雅,让人感觉温暖而舒适。
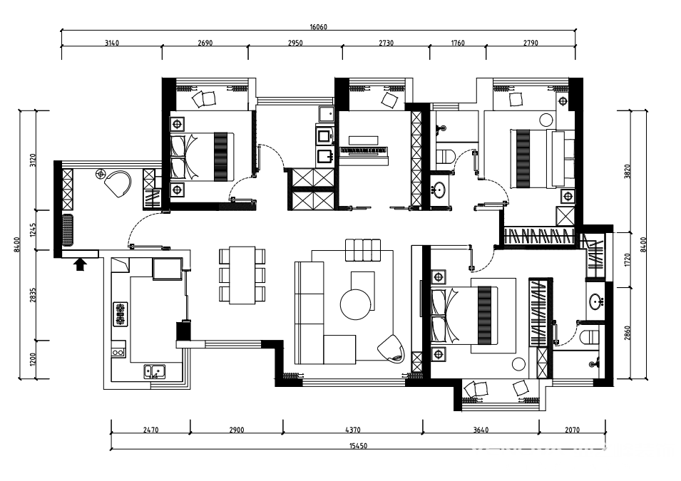
户型图

客厅



卧室

简美因为风格相对简洁,细节处理便显得尤为重要,这是一家三口,希望风格大气。简约的空间设计非常含蓄,往往能起到以少胜多,以简胜繁的效果,没有多余的设计,每处都格外的干净利落,简洁而优雅,让人感觉温暖而舒适。




