80㎡二居现代简约风格望城国际公馆
发布时间:
2025年10月30日
小区:望城国际公馆 面积:80㎡ 户型:二居 风格:现代简约风格
设计说明
本方案是现代简约风格, 客户属于80后.目前常住三口人,;房子主要是为孩子上学,对于空间要求简单,有足够的收纳.动线合理;
在基础需求上对空间布局设计以尽可能简单、合理.在主色搭配上以浅色为主,辅助色跳深色,点缀色适当加一些饱和度高的色彩,让整体空间显得有活力;
在收纳上以人为本,合理利用好每一个空间,在忙碌的生活间隙方便使用,根据客户的爱好,习惯以及家庭人员结构,按一定比例去划分每个人的收纳空间;
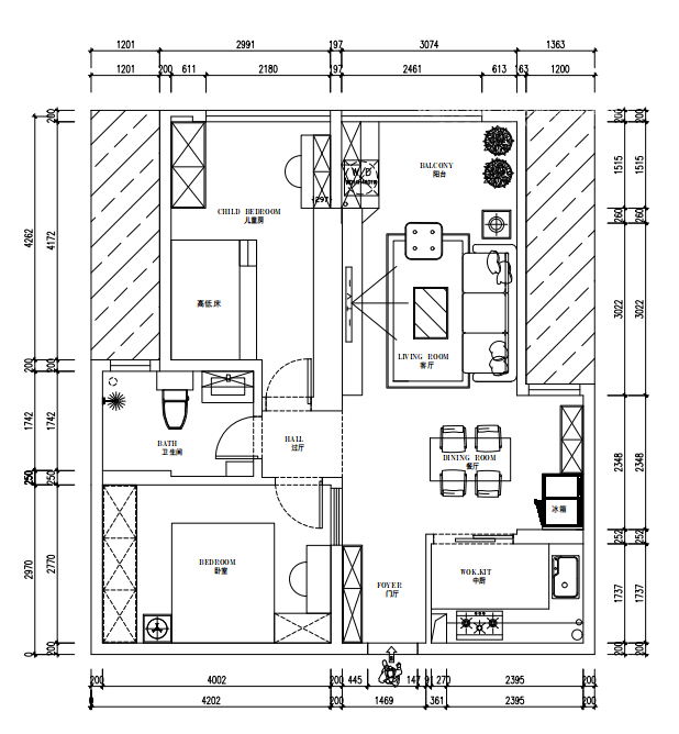
户型图

卧室

餐厅

玄关

客厅






京公安网备11010502040911