85㎡二居现代简约风格新西钢小区
发布时间:
2025年10月18日
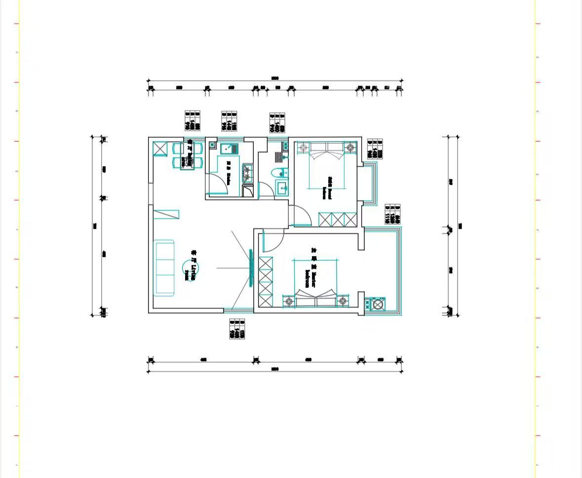
小区:新西钢小区 面积:85㎡ 户型:二居 风格:现代简约风格
设计说明
本空间以“现代简约”风格为设计核心,遵循 “空间序列优化、功能复合集成、细部精致营造” 原则,构建一体化居住系统。 采用开放式空间组织模式,将入户、客餐厅进行通联设计,将现代简约的利落线条与自然温润的材质相融合,营造舒适治愈的居住氛围。使客餐厅成为兼具社交聚会、日常休憩等复合功能的家庭核心场景。主次卧空间遵循动静分区原则,保障休憩行为的私密性;主卧集成洗衣功能模块,强化空间实用性。
整体色调以奶白色为基底,搭配浅原木色为主调,奶白的墙面与顶面弱化空间边界,让光线自由流淌;原木色运用于地面、柜体及局部家具,通过自然纹理传递温润质感,中和简约风格的清冷感。收纳系统遵循垂直空间最大化利用逻辑,橱柜、衣柜采用置顶设计,拓展收纳容量;照明设计运用主灯与氛围灯带、线性灯的组合方式,依据不同功能场景实现精准适配,塑造多元光环境。整体空间既满足现代生活的实用需求,又通过原木与奶白的柔和碰撞,让简约不止于形式,更兼具温度与质感。
户型图

卫生间

卧室


餐厅

厨房

客厅

