157㎡平层现代简约风格万科东望
发布时间:
2025年10月18日
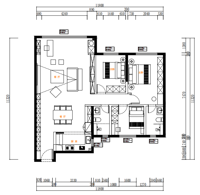
小区:万科东望 面积:157㎡ 户型:平层 风格:现代简约风格
设计说明
户型的优点:四面采光和通风效果好,主卧空间充裕,厨房与餐厅相邻且靠近入户门,避免穿过客厅弄脏动线。
户型的缺点:卫生间距离客餐厅区域较远,狭长走廊浪费过多空间。
客户需求:需要更多的储物空间,满足日常需求。
设计理念:现代简约设计风格以“去繁就简,以人为本”的核心,旨在通过简洁的空间规划,纯粹的设计语言与实用的功能布局,打造舒适,通透且贴合当代人生活需求的居住环境,并且关注“人性化细节”,如厨房台面高度适配多数人身高,避免弯腰劳累,卫生间干湿分离,保障使用安全,让简约设计即美观又贴合实际居住习惯。
户型图

卫生间

卧室


厨房

客厅





京公安网备11010502040911