129㎡平层现代简约风格雁熙云著
发布时间:
2025年11月20日
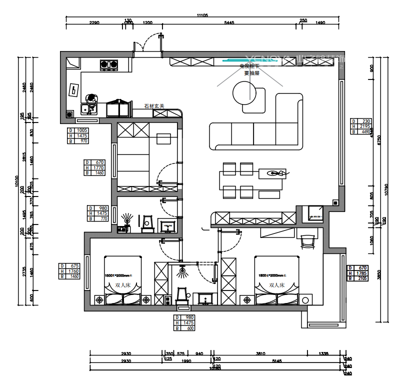
小区:雁熙云著 面积:129㎡ 户型:平层 风格:现代简约风格
设计说明
本方案面积为129平方米,以现代简约风格打造舒适实用的居住空间。整体空间布局上,开放式设计让客厅、餐厅与厨房连贯一体,视野开阔,增强了空间的互动性。
• 色调与材质:以浅木色、米白、深灰为基底,搭配大理石、皮革、玻璃等材质,通过低饱和配色与细腻纹理营造高级感。
• 空间布局:客餐厨一体化设计,弱化空间边界;卧室、书房采用嵌入式柜体+功能区整合(如书房床柜一体),最大化利用空间。
• 细节亮点:弧形吊顶、线性灯带、无主灯设计增强空间柔和感;隐藏式收纳+开放式展示柜平衡实用与美学;大窗配纱帘引入自然光线,让空间通透明亮。
整体以“少即是多”为原则,在简约形态中融入舒适体验与精致细节。
户型图

卧室



卫生间

厨房

客厅





京公安网备11010502040911