110㎡平层现代简约风格金堆城
发布时间:
2026年01月02日
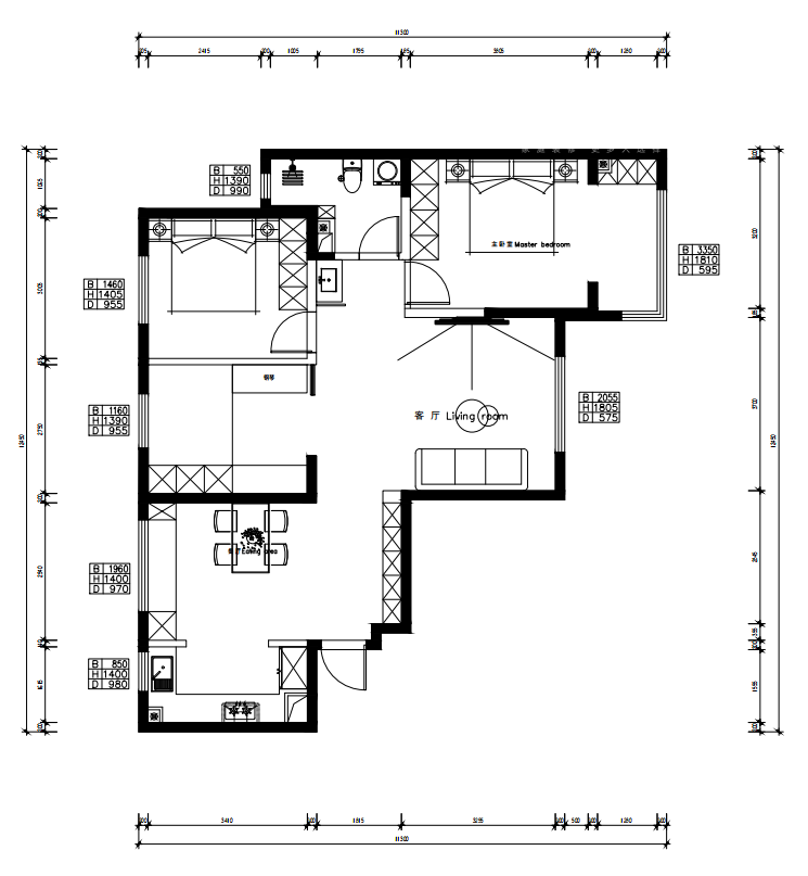
小区:金堆城 面积:110㎡ 户型:平层 风格:现代简约风格
设计说明
本案为金堆城小区三室两厅户型,设计定位于现代简约风格,秉承“功能至上,形式追随功能”的设计哲学,旨在为业主打造一个通透、明亮、舒适且极具实用性的现代居所。整体设计采用开放式布局思维,优化生活动线,最大化引入自然光线,增强空间互动性与视觉开阔感。色彩上以高级灰、纯白为主基调,局部搭配温润的原木色系增添自然与温暖质感,并运用金属、玻璃等现代材质细微点缀,提升空间的精致度与层次感。客厅采用无主灯设计,结合磁吸轨道灯与射灯实现精准而富有氛围的分区照明,定制简约电视墙整合收纳功能,保持立面整洁利落。餐厅搭配简约岩板餐桌与皮质餐椅,营造温馨舒适的用餐环境。三间卧室分别满足主卧、儿童房及书房兼客卧的多重需求,强调宁静与舒适,定制顶天立地衣柜提供强大收纳,线条简洁流畅。卫生间注重干湿分离设计,选用浅色系瓷砖搭配智能镜柜,实现小空间的视觉扩容与功能完善。全案摒弃一切不必要的装饰,专注于空间、光影与功能的完美融合,最终呈现一个回归本真、宁静而富有质感的现代家居环境。
户型图

卧室


餐厅

厨房

客厅






京公安网备11010502040911