北京
【切换】
整屋案例
家居美图
实景案例
装修现场
装修攻略
无数据
搜索
010-84934479
扫码快速拨号 >
扫码快速拨号
首页
效果图
设计师
装修现场
装修攻略
品质保障
了解业之峰
当前位置:
首页
装修图库
案例相册
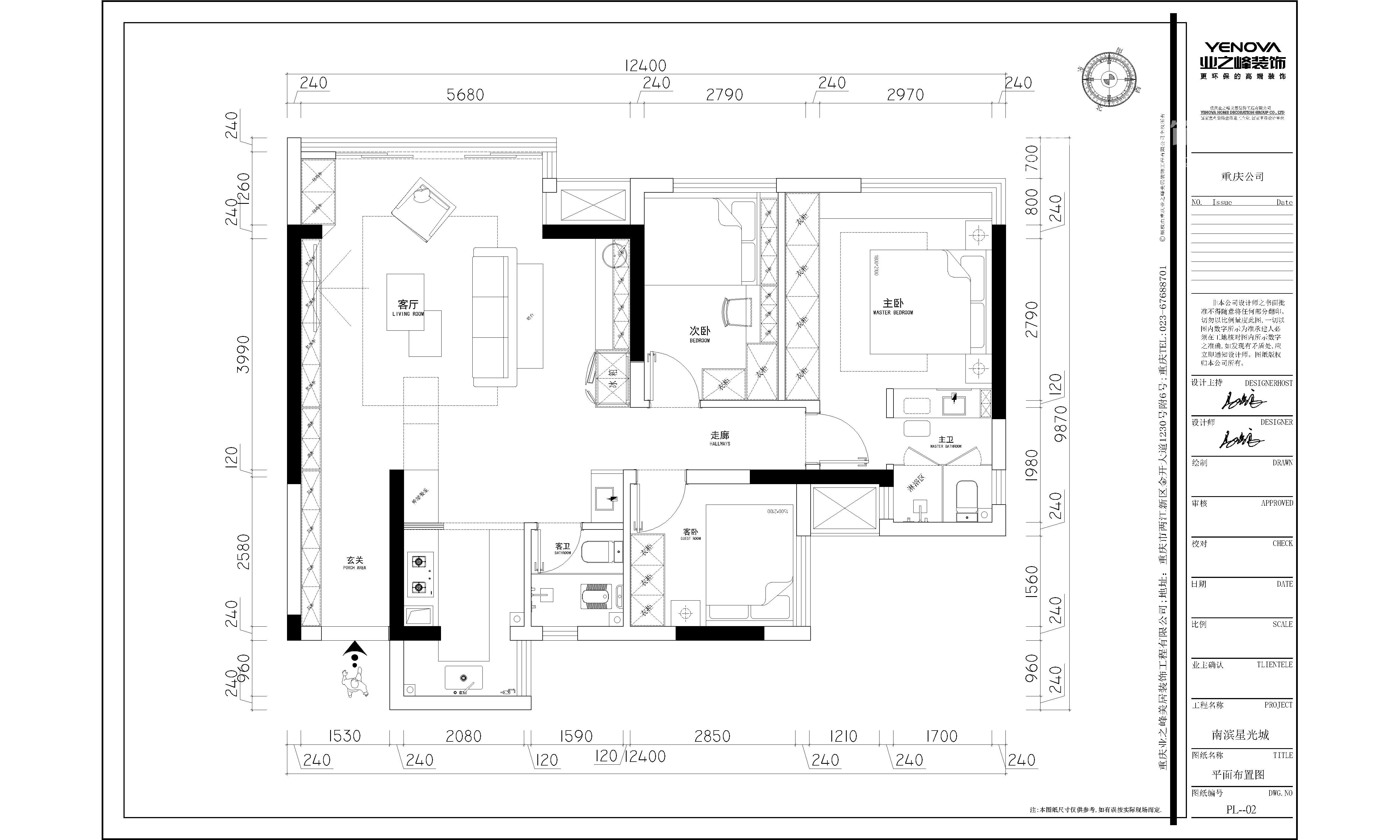
97㎡平层现代简约风格南滨星光城
发布时间: 2025年10月15日
小区:南滨星光城
面积:97㎡
户型:平层
风格:现代简约风格
设计说明
追求视觉上的空旷感和留白:减少物品的数量,只保留最必要、最精致的部分,让空间本身成为主角。
户型图
卧室
客厅
设计说明
户型图
卧室
客厅
本案设计师
马瑞良
高级设计师
免费咨询
我家装成这样多少钱?
㎡
获取报价
相关案例推荐
160㎡平层现代简约风格龙湖.江与城
查看详情
133㎡平层现代简约风格华侨城云溪都会
查看详情
105㎡平层现代简约风格融创文旅城
查看详情
322㎡平层现代简约风格融创望江府
查看详情
165㎡平层现代简约风格奥园和悦府
查看详情
129㎡平层现代简约风格雁熙云著
查看详情
129㎡平层现代简约风格雁熙云著
查看详情
157㎡平层现代简约风格万科东望
查看详情
108㎡平层现代简约风格劳动公园里
查看详情
95㎡平层现代简约风格国兴北岸江山
查看详情
143㎡平层现代简约风格鼎城悦玺
查看详情
157㎡平层现代简约风格龙湖源著
查看详情
115㎡平层现代简约风格中建-国玺台
查看详情
110㎡平层现代简约风格凤凰湾
查看详情
150㎡平层现代简约风格香港置地云山岳
查看详情
142㎡平层现代简约风格雁熙云著
查看详情
116㎡平层现代简约风格麋家桥小区
查看详情
129㎡平层现代简约风格翠景台
查看详情
170㎡平层现代简约风格雅居乐御宾府
查看详情
展开
报价计算器
免费量房
免费设计
回到顶部