181㎡平层现代简约风格福星惠誉美术城
发布时间:
2025年12月25日
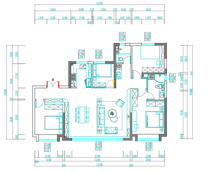
小区:福星惠誉美术城 面积:181㎡ 户型:平层 风格:现代简约风格
设计说明
户型的优点:四面采光和通风效果好,户型可改造性强,面积充裕。
户型的缺点:卧室区域紧邻客餐厅,休息时可能会被打扰。
客户需求:简约实用,收纳空间充足,客餐厅开阔通透。
设计理念:融合西安本土文化元素与现代新中式风格,以「尊重代际差异,兼顾互动与隐私」为原则。通过动静分区设计,将老人房、儿童房与主卧的休息区和客餐厅的公共区清晰划分;用木质格栅、留白墙面、中式对称布局传递传统雅韵,同时加入适老化细节(无障碍通道、防滑地面)与儿童友好设计(圆角家具、游戏收纳区),打造三代人各得其所、和谐共处的宜居空间。
户型图

卧室


卫生间

厨房

客厅





京公安网备11010502040911