110㎡平层现代简约风格204社区
发布时间:
2026年01月02日
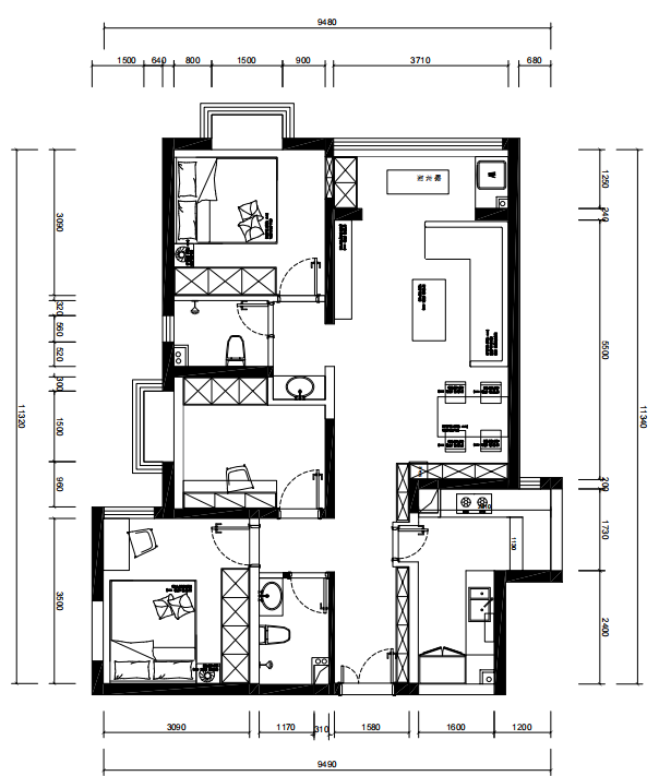
小区:204社区 面积:110㎡ 户型:平层 风格:现代简约风格
设计说明
案例业主居住需求:本案房子为一家三口所用,女儿房需要单独隔出来一个书房女儿办公和看书需要。主卧夫妻两住简简单单主要睡眠为主,女儿已经工作了,需要一个干净舒适的环境。客户要求有储衣储书还有睡眠区和学习区,所以根据需求我们在卧室做了充足的储物。整体方案定调现代简约风格,注重布局和空间的结合使用,以简单朴素为主调,在总体布局上尽量考虑,满足业主对生活上的基本需求。主卧以舒适的原木色和白色调搭配用色,整体去呈现柔和淡雅,温馨的气质。软装整体采用布艺和木质材质的桌面提升整体风格的特点。摆件多采用精致美观来增添空间的生机活力。
户型图

卧室


厨房

衣帽间

客厅






京公安网备11010502040911