280㎡四居现代简约风格南湖玖号院
发布时间:
2020年09月12日
小区:南湖玖号院 面积:280㎡ 户型:四居 风格:现代简约风格
设计说明
客户是改善型住房,父母带孩子和一个老人。整体方案选择的是现代简约,时尚大气,长时间居住也不会又视觉疲劳。公共区域全部采用开放式空间,大平层的采光与通透性得到完美的展现。石材与壁布的结合,彰显高端又不失温暖。不同的卧室设计满足每一位家庭成员的喜好,独立的工作间让男主人安静的工作同时又不影响到家人。
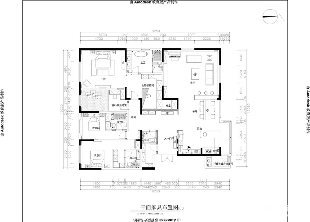
户型图

儿童房

休闲区

卧室


卫生间

餐厅

客厅




衣帽间

厨房

玄关





京公安网备11010502040911