155㎡四居新中式风格自建房
发布时间:
2020年07月23日
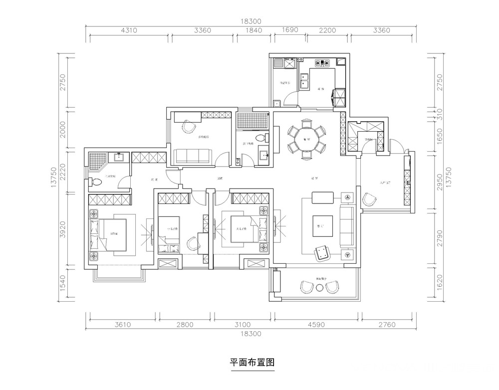
小区:自建房 面积:155㎡ 户型:四居 风格:新中式风格
设计说明
本方案风格为新中式风格,本次设计案例中采用的以简为中心,体现文化与时尚相结合的设计理念,灰色的仿石材地砖不带任何边带的修饰,简单而有细节体现,墙面以简单线条勾勒出新中式的立体感,顶面也采用现代金属装饰线条点缀,没有过多复杂造型与累赘。整个空间主要采用软装搭配来体现新中式韵味,以简洁的线条勾勒空间,令空间的框架简练、明朗。同整体空间简约优美,带出浅浅的现代硬朗的风情,却不着重笔,令线条彰显出一种流畅的动感。简洁的柱体再行略显庄重,家居的整体韵调悠然而出。
户型图

客厅



卧室





京公安网备11010502040911