332㎡别墅轻奢风格麓山国际
发布时间:
2020年07月23日
小区:麓山国际 面积:332㎡ 户型:别墅 风格:轻奢风格
设计说明
本案是围绕现代轻奢风为主题的设计。没有古典的繁琐,从材质和色彩造型,都更营造出放松和优雅的空间,追求独特品味和格调的生活态度。
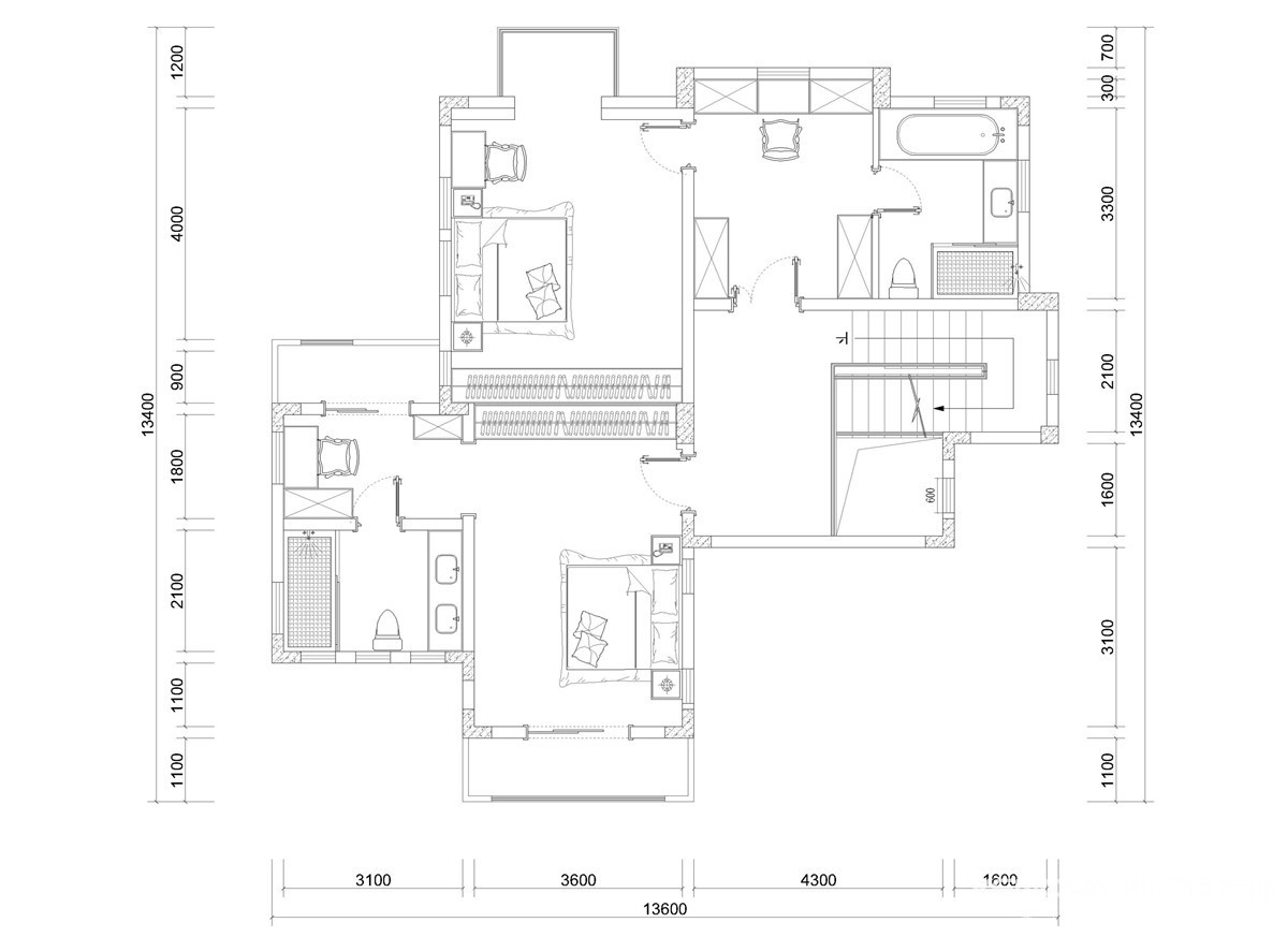
户型图

卧室

客厅






本案是围绕现代轻奢风为主题的设计。没有古典的繁琐,从材质和色彩造型,都更营造出放松和优雅的空间,追求独特品味和格调的生活态度。







