200㎡四居新中式风格三江花园
发布时间:
2025年10月08日
小区:三江花园 面积:200㎡ 户型:四居 风格:新中式风格
设计说明
本案位于西宁市城西区新宁路,是一套四室两厅两卫的户型,业主怀揣着对理想家园的美好憧憬,期望这个项目能巧妙地融合中式和法式风格,营造出通透明亮且自然松弛的独特氛围
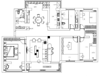
户型图

主卧室

主卧床头背景墙采用法式线条进行装饰,并用
餐厅

在这个家中,南向的餐厨区域是亮点所在。圆
客厅

客厅电视背景墙两边分别用了对称的墙板造型
户型图

本案位于西宁市城西区新宁路,是一套四室两




京公安网备11010502040911