180㎡四居新中式风格大华公园世家
发布时间:
2025年09月29日
小区:大华公园世家 面积:180㎡ 户型:四居 风格:新中式风格
设计说明
中式风格是一种看似简单,确暗藏雅韵质感设计,要通过各种极简的细节相互呼应搭配才能做出气质。
本案中,卧室和客餐厅墙面大部分都是以留白为主,局部墙面做一些立体造型或者调色乳胶漆。使得整体空间会有一种简洁大方的氛围。像家具颜色整体偏米白色,浅灰色为主,并且客厅背景墙都是对称,搭配木质的家具,整体给人的感觉是更加轻松浅淡。后期摆饰品都比较极简优雅为主,花瓶、插花、盆景等,挂画一般采用山水、花鸟图案为主,整体效果呈现禅意端庄。
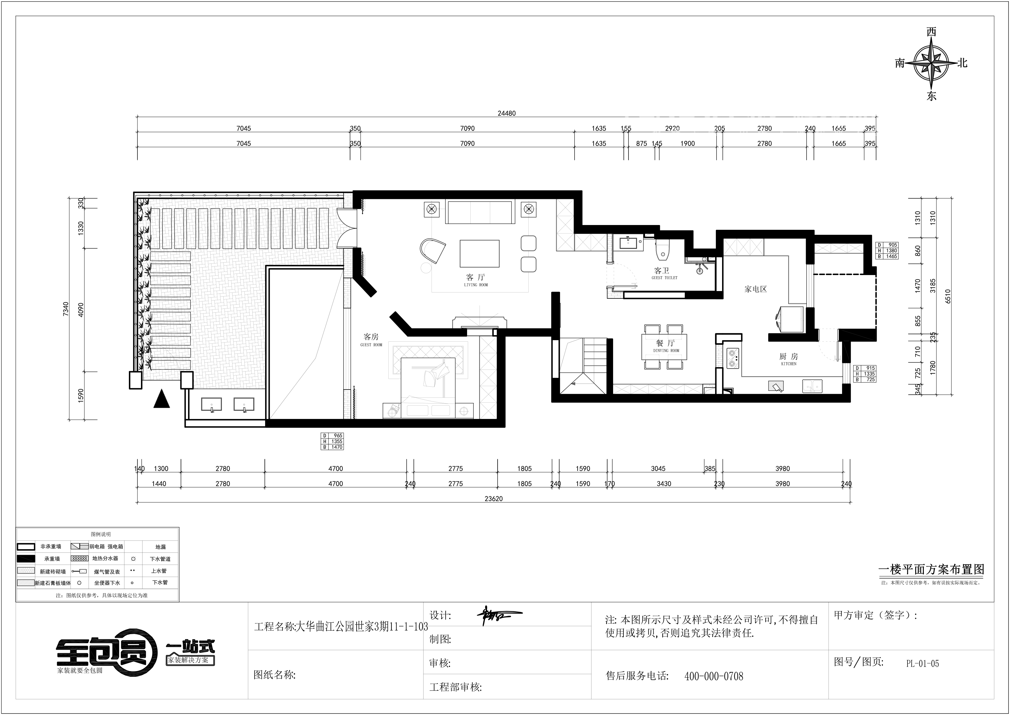
户型图




卧室


餐厅

客厅





京公安网备11010502040911